Khám phá vẻ đẹp của nhà 2 tầng mái Thái phong cách tân cổ điển, dưới các góc nhìn tổng thể, góc nghiêng, góc nhìn chính diện. Đặc biệt, là phương án mặt bằng xuất sắc của nhà 2 tầng mái Thái, chân thật nhất qua ngôi nhà của anh Sớm - chủ đầu tư ở Hưng Yên được thiết kế và thi công bởi Xây dựng Bắc Trung Nam.

Nhà hai tầng mái Thái phong cách tân cổ điển luôn luôn có sức hút đối với mọi gia chủ. Bất kỳ ai, khi nhìn đến ngôi nhà này đều sẽ say đắm trước nó. Và anh Sớm - chủ đầu tư ở Hưng Yên cũng không ngoại lệ. Cảm ơn anh Sớm đã cho Xây dựng Bắc Trung Nam cơ hội được thiết kế và thi công cho mái ấm tương lai của anh. Vậy Tại sao nhà 2 tầng mái Thái phong cách tân cổ điển thu hút nhiều chủ đầu tư như vậy? Hãy cùng Xây dựng Bắc Trung Nam khám phá ngôi nhà mới, xinh đẹp của anh Sớm ở Hưng Yên nhé.

Góc nghiêng quyến rũ của nhà 2 tầng mái Thái của anh Sớm

Nội Dung

Thông tin chung

  • Tên mẫu thiết kế: Nhà 2 tầng mái Thái

  • Chủ đầu tư: Anh Sớm (Chu Văn Sớm)
  • Địa chỉ xây dựng: Ân Thi, Hưng Yên
  • Công năng sử dụng: Phòng khách, bếp ăn, 4 phòng ngủ, 2 phòng vệ sinh.
  • Thời điểm thiết kế: 02/2022

Hình ảnh bản vẽ thiết kế mặt bằng nhà hai tầng mái Thái của anh Sớm.

Một không gian sang trọng hiện đại thể hiện đẳng cấp và địa vị của gia chủ. Một không gian thoáng đãng, ấm áp nâng cao hạnh phúc và sự nghiệp của gia chủ, giúp cho gia chủ cảm thấy thoải mái hơn trong ngôi nhà của chính mình.

Trái ngược với hình ảnh những ngôi nhà chật hẹp, oi bức nhà 2 tầng mái Thái của anh Sớm được thiết kế rộng rãi thoáng mát với 4 phòng ngủ, 1 phòng khách, một phòng bếp và phòng ăn và phòng vệ sinh được bố trí một cách hợp lý.

Phương án tổng quát nhà 2 tầng mái Thái của anh Sớm

Từ những bước chân đầu tiên các gia chủ sẽ bị choáng ngợp bởi phòng khách thoáng mát, sáng sủa. Với tổng thể phòng khách là 20 mét vuông kết hợp phong cách trang trí của các kiến trúc sư dày dặn kinh nghiệm, đã cho ra một siêu phẩm phòng khách tinh tế, hài hòa, đẹp mắt mang đến cảm giác thư giãn cho gia chủ khi trở về nhà. 

Đây cũng là không gian đón tiếp những vị khách quý đến chơi nhà. Thiết kế kiến trúc sang trọng, hiện đại không chỉ thể hiện được sự hiếu khách, thân thiện của chủ nhà mà còn biểu đạt địa vị và đẳng cấp của gia chủ.

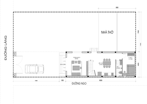
Phương án mặt bằng tầng 1 của nhà 2 tầng mái Thái

Tiếp đến chính là sự hài hòa giữa phòng bếp và phòng ăn giúp cho các thành viên trong gia đình có nhiều khoảnh khắc tuyệt vời bên nhau.Với 18 mét vuông, phòng bếp và phòng ăn được thiết kế kết hợp với nhau mang lại sự ấm cúng, thanh mát cho các thành viên trong gia đình, giúp cho các thành viên có nhiều không gian gần gũi với nhau hơn.

Phòng vệ sinh và phòng ngủ sẽ tiếp ở phía sau phòng bếp.

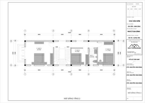
Mặt bằng tầng 2 nhà 2 tầng mái Thái của anh Sớm

Tiếp tục với gian tầng 1 chính là tầng 2, đó là hệ thống phòng ngủ. Lầu hai được chia làm ba phòng ngủ và phòng vệ sinh chung được bố trí một cách khoa học.

Mặt tiền nhà hai tầng mái Thái phong cách tân cổ điển của anh Sớm Hưng Yên

Bất kỳ ai đều sẽ yêu mẫu nhà hai tầng mái Thái này từ cái nhìn đầu tiên. Bởi, nhà hai tầng mái Thái của anh sớm được thiết kế theo phong cách tân cổ điển với hệ thống cột nguy nga lộng lẫy, được trang trí bằng các họa tiết hoa văn sang trọng.

Hệ thống cột tròn kết hợp với cửa chính được trang chí hình vòng cung ở tầng 2 đây là kiểu thiết kế truyền thống của phong cách tân cổ điển mang lại sự quyến rũ, thanh lịch cho ngôi nhà

Với tone màu chủ yếu là màu trắng sang trọng, tinh khiết làm cho ngôi nhà trở nên nổi bật giữa hơn bao giờ hết .

Giữa khung màu trắng lung linh nổi bật lên đó là cánh cửa chính được làm bằng gỗ tự nhiên màu đỏ tươi tô điểm bình các hoa văn rồng phượng giúp cho ngôi nhà trở nên thu hút. Không dừng lại ở đó cửa chính được trang trí thêm bên các ô vừa giúp cô cửa nhỏ bằng kính giúp ngôi nhà trở nên thoáng đãng.

Mặt tiền nhà 2 tầng mái Thái của anh Sớm

Cửa gỗ mang đến một nét đẹp phong thủy truyền thống của người Việt Nam. Gỗ là đại diện cho hành mộc đem đến sự ấm, áp thanh thoát trong gia đình đồng thời gỗ cũng phò trợ cho sự nghiệp của gia chủ, thu hút những duyên lành điềm tốt xua đi những vần xấu, không may.

Nhà 2 tầng mái Thái phong cách tân cổ điển của anh Sớm (Hưng Yên)  trở nên quyến rũ hơn bởi hệ thống lan can được làm bằng sắt với những đường cong duyên dáng, làm dịu đi vẻ cứng cỏi của hệ thống cột.

Nét đặc trưng nhất có ngôi nhà này đó chính là hệ thống mái được thiết kế theo kiến trúc nhà Thái Lan truyền thống. Mái nhà được thiết kế thành các hình khối tam giác đan xen nhau tạo nên cảm giác quyến rũ, uyển chuyển cho ngôi nhà nó thể hiện sự quyến rũ cũng như nét mạnh mẽ, kiên cường của gia chủ.

Hệ thống ngoại thất được trang trí một cách khoa học, hợp lý, sang trọng và bắt mắt, góp phần nâng cao giá trị của ngôi nhà cũng như địa vị của gia chủ.

Góc nhìn nghiêng của việc th hai tầng mái Thái

Nhìn từ góc như nhà 2 tầng mái Thái của anh Sớm (Hưng Yên) như một “nàng thơ” kiêu sa lộng lẫy.

Lung linh với nhà 2 tầng mái Thái

Hệ thống cửa sổ được làm bằng kính cường lực viền nhôm đỏ, làm nổi bật lên giữa phong nền trắng, khiến cho ngôi nhà trở nên thu hút tạo nét quyến rũ đặc trưng của ngôi nhà.

Khung cửa sổ được trang trí bằng các đường viền nối kết với thể thống cột  làm cho làm nên vẻ kiên cường rắn rỏi của ngôi nhà.

Góc nghiêng của nhà 2 tầng mái Thái

Dưới góc nghiêng này, chúng ta không thể bỏ qua nét đẹp của mái nhà. Hệ thống mái Thái được xếp thành những khối hình tam giác xếp chồng lên nhau với độ dốc vừa phải, tựa như những ngọn đồi nhấp nhô kết hợp với hoạ tiết trang trí tạo nên một bức tranh hoàn mỹ.

Ban công được tô điểm bằng các tiểu cây xanh mang lại cảm giác yên bình ấm áp.

Góc nhìn tổng thể của ngôi nhà

Nhìn tổng thể ngôi nhà tựa như một “nàng thiếu nữ”  thẹn thùng, tĩnh lặng.

Thay vì sử dụng mái tôn gây ồn ào khi mùa đông, nóng nực với mùa hè. Thì nhà 2 tầng mái Thái của anh Sớm sử dụng mái ngói màu xanh.

Hệ thống mái ngói màu xanh nổi bật giữa tone màu trắng của ngôi nhà, đồng thời mái ngói cũng giúp giảm âm mỗi khi có mưa lớn và giảm nhiệt khi trời oi bức.

Góc nhìn tổng thể của nhà 2 tầng mái Thái

Hệ thống mái Thái được thiết kế thành những hình tam giác không chỉ mang tính thẩm mỹ cao mà nó còn thân thiện với môi trường, giúp cho ngôi nhà dễ dàng thoát nước vào mùa mưa tăng thêm tính an toàn, nâng cao tuổi thọ của ngôi nhà.

Đơn vị thiết kế và thi công nhà 2 tầng mái Thái của anh Sớm (Hưng Yên)

Xây dựng Bắc Trung Nam là công ty thiết kế và thi công nhà ở trọn gói chất lượng uy tín trên cả nước. Tất cả các công trình đều được tính toán kỹ lưỡng trong từng chi tiết kết hợp với mong muốn và nhu cầu của gia chủ, đem đến cho gia chủ một mái ấm êm đềm, những những trải nghiệm tuyệt vời nhất và cũng là một ngôi nhà phù hợp với phong thủy, sự phát triển của gia chủ nhất.

Hãy liên hệ ngay với Xây dựng BẮC TRUNG NAM để sở hữu ngay cho mình một ngôi nhà SANG TRỌNG - CHẤT LƯỢNG - AN TOÀN nhé!!

Hotline: 0963.95.1111 

 

 

popup

Số lượng:

Tổng tiền: