BẢN VẼ NHÀ CÓ THẬT SỰ CẦN THIẾT TRONG XÂY DỰNG???

 24/03/2022  0  Bình luận

Xây nhà là một dấu ấn quan trọng trong cuộc đời mỗi con người. Trước khi bắt tay vào xây nhà, gia chủ cần lưu ý tỉ mĩ rất nhiều thứ, trong đó có lựa chọn mẫu nhà và bản vẽ nhà phù hợp. Nhưng liệu, Bản vẽ nhà có thực sự cần thiết trong xây dựng?

Hãy cùng Xây dụng Bắc Trung Nam tìm hiểu về tầm quan trọng của bản vẽ  nhà  nhé.

Nội Dung Chính

Bản vẽ nhà  là gì?

Bốn loại bản vẽ cần thiết khi thiết kế nhà

Tầm quan trọng của bản vẽ nhà

Bản vẽ nhà thể hiện đầy đủ kết cấu của ngôi nhà.

Giải pháp khi gia chủ không đọc và hiểu bản vẽ nhà?

Bản vẽ nhà luôn thể hiện rõ ràng mọi chi tiết.

Bản vẽ nhà giúp bạn có thể lường trước được các vấn đề phát sinh

Bản vẽ nhà  là gì?

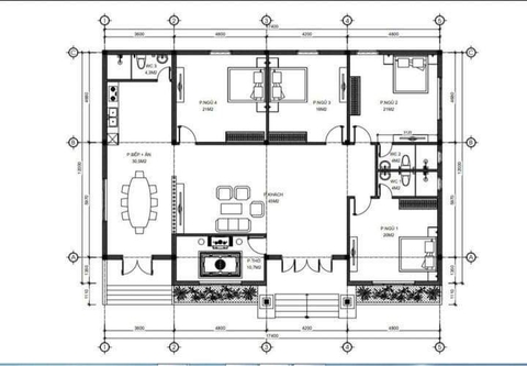
Mẫu bản vẽ nhà

Trước khi tìm hiểu về tầm quan trọng của bản vẽ nhà, thì chúng ta hãy cùng xác định xem, bản vẽ nhà là gì? Nhé.

Việc đầu tiên cần chuẩn bị để xây dựng một nhà  đó chính là bản vẽ nhà .

Tuy nhiên, hiện nay nhiều người còn nhầm lẫn giữa bản vẽ nhà với mẫu nhà .

Vì vậy nội dung này sẽ giúp bạn phân biệt rõ ràng hai khái niệm này.

Mẫu nhà: là những hình ảnh 3D hoặc những hình ảnh thực tế mô phỏng về ngôi nhà khi đã được xây dựng hoàn thiện. Nhìn vào đó gia chủ có thể thấy được ngôi nhà mình xây dựng với màu sắc như thế nào, kết cấu ra sao, trang trí nội thất như thế nào,...

Bản vẽ nhà: nó chính là hình ảnh biểu diễn các mặt bằng, mặt đứng và mặt cắt của căn nhà, đi cùng vưới các số liệu cụ thể.

Là bản vẽ khắc họa một cách chi tiết về những thông tin trong căn nhà. Ví dụ như nhà có bao nhiêu phòng, mỗi phòng bao nhiêu mét vuông, hình dạng của các phòng như thế nào, vị trí các phòng trên mặt bằng,...

Bản vẽ nhà  giúp cho gia chủ có thể ước lượng được diện tích của căn phòng và hoạch toán các số liệu một cách cụ thể và rõ ràng nhất. Và, đó cũng chính là công cụ giao tiếp giữa gia chủ với đơn vị thiết kế và thi công.

Bốn loại bản vẽ cần thiết khi thiết kế nhà

Bảng vẽ mặt bằng tầng 1 của biệt thự 2 tầng mái Nhật

Bản vẽ mặt bằng chi tiết: là bản vẽ bố trí, sắp xếp chi tiết của các phòng bên trong căn nhà. Như là vị trí, kích thước của các phòng, các vách ngăn, cửa phòng,...

Đối với các nhà cao tầng, mỗi một tầng sẽ có bản vẽ mặt bằng chi tiết khác nhau. Thể hiện chi tiết kết cấu bên trong.

Hình ảnh ngoại thất tổng thể của căn nhà: là tầm nhìn của ngôi nhà trên thực tế. Nó được thể hiện với không gian ba chiều (3D), để cho gia chủ có thể dễ dàng quan sát được từng chi tiết sẽ xuất hiện trong ngôi nhà của mình sau này. Như là chiều cao của các tầng, độ cao của mái, chiều cao và chiều rộng của cửa,...và ngoại thất trang trí bên ngoài căn nhà.

Một ngôi nhà có bốn mặt: mặt tiền (mặt trước), mặt sau lưng và 2 mặt bên và hình ảnh từ góc nhìn tổng thể.

Nên tương đương hình ảnh ngoại thất của căn nhà s 5 hướng nhìn, nếu trường hợp gia chủ yêu cầu hai mặt hai bên giống nhau thì chỉ cần 4 hướng nhìn. 

Kết cấu móng dầm mái, sàn: là bản vẽ mặt thể hiện chi tiết kết cấu móng, mái và cả sàn của căn nhà. Nó thể hiện vị trí móng, các cột, sàn và độ cao, độ dày của chúng. góc nhìn từ trên cao xuống của căn nhà khi đã cắt ngang.

Hình ảnh móng, cột và sàn nhà của nhà phố

Bản vẽ điện nước: là bản vẽ thiết kế thể hiện toàn bộ hệ thống điện trong nhà và là bản vẽ phác họa kết cấu cũng như những đường dẫn, nối các hệ thống điện, nước trong căn nhà.

Bản vẽ này sẽ đi sâu vào từng chi tiết trong căn nhà, nên hỗ trợ rất nhiều cho việc bố trí, lắp đặt điện, nước.

Tầm quan trọng của bản vẽ nhà 

Mẫu nhà mái Thái sang trọng tại Xây dựng Bắc Trung Nam

Có nhiều câu hỏi được đặt ra rằng: “Bản vẽ nhà có quan trong trong xây dựng?”

Bản vẽ nhà có vai trò rất quan trọng trong việc thiết kế và xây dựng nhà. Bản vẽ nhà nó sẽ định hình được ngôi nhà của gia chủ sẽ có mặt tiền và công năng như thế nào, cách thiết kế ra sao, vị trí và diện tích các phòng,... đồng thời nó còn giúp gia chủ định hình được những căn nhà và ngăn ngừa những rủi ro trong xây dựng.

Căn nhà được coi như là tài sản quý giá của nhiều người, là nơi đồng hành, nơi chắn gió che mưa, nơi nạp nguồn năng lượng mới đối với họ. Vì vậy làm sao để có được một căn nhà đẹp, chất lượng và an toàn là điều mà tất cả mọi người đều mong muốn.

Tuy nhiên, có một số gia chủ vì tiết kiệm chi phí mà khi xây dựng nhà, bỏ qua khâu thiết kế và không cần đến bản vẽ nhà. Dẫn đến trường hợp, khi xây dựng xong rồi mới biết nhà mình còn nhiều lỗi sai, kiến trúc không hợp lý, chật chội, thô kệch,...

Một khi đã xảy ra những sai sót, thì việc sửa chữa những lỗi lầm đó rất tốn kém chi phí. 

Chi phí cho tân trang và sửa chữa lại căn nhà sẽ lớn hơn chi phí thiết kế bản vẽ nhà rất nhiều. Thậm chí là gấp đôi chi phí thiết kế bản vẽ nhà.

Vậy nên một lời khuyên chân thành, đó chính là: Trước khi bắt tay vào xây dựng nhà các gia chủ phải có bản vẽ cho căn nhà của mình.

Bản vẽ nhà thể hiện đầy đủ kết cấu của ngôi nhà. Và giải pháp khi gia chủ không đọc và hiểu bản vẽ nhà?

Biệt thự 2 tầng mái Nhật quyến rũ

Thật ngớ ngẩn khi cho rằng, bạn không hiểu được bản vẽ nhà thì cần dùng đến nó để làm gì. Chỉ cần bắt tay vào xây dựng là xong.

Đó là một suy nghĩ sai lầm và cần được xóa bỏ.

Bạn có biết, trong quá trình xây dựng nhà nó tồn tại rất nhiều nguy cơ. Nếu bạn chỉ đăm đăm vào việc xây dựng nhà, mà bỏ qua khâu thiết kế bản vẽ thì các nguy cơ đó sẽ được hiện thực hóa với những hậu quả rất khó lường.

Nhưng, một khi bạn đã có được bản vẽ nhà. Các kiến trúc sư sẽ giúp bạn cách xem, đọc, và hiu bản vẽ nhà  một cách rõ ràng và chi tiết nhất.

Đồng thời họ cũng sẽ em sẽ biết cách để xây dựng một ngôi nhà vững chắc và chất lượng đồng thời tiết kiệm chi phí.

Bản vẽ nhà sẽ giúp gia chủ và đơn vị thiết kế và thi công có thể xây dựng một ngôi nhà đúng mong muốn và nguyện vọng của gia chủ. Và đặc biệt, đảm bảo về an toàn chất lượng.

Đối với những ngôi nhà với diện tích nhỏ, thì bản vẽ nhà có tầm quan trọng cực kỳ lớn.

Bản vẽ nhà luôn thể hiện rõ ràng mọi chi tiết.

Biệt thự tân cổ cao cấp

Nếu chỉ mô tả bằng lời nói suông thì rất khó để xây dựng một căn nhà như ý.

Hãy tự thử nghĩ xem, một căn nhà với ý muốn mơ hồ, chỉ được truyền đạt qua lời nói. Thậm chí, mỗi người có mỗi cách hiểu và cách nhận thức vấn đề khác nhau. Đơn vị thi công nhà rất khó để nắm bắt được mong muốn và nguyện vọng của gia chủ.

Đến khi ngôi nhà được xây xong, ngôi nhà không đúng với với yêu cầu của gia chủ thì gia chủ vừa tốn chi phí cho việc tân trang lại, và cũng không thể khiếu nại đơn vị thi không được.

Bởi vì đâu có bằng chứng, tất cả chỉ là một lời nói suông.

Nhưng nếu với một bản vẽ nhà trong tay sẽ khác. Bản vẽ nhà thể hiện rõ nét nhất từng chi tiết và tổng bộ phận của căn nhà.

Gia chủ chỉ còn nhìn là có thể tưởng tượng được những kết cấu cũng như kiến trúc của căn nhà.

Nếu có vấn đề gì không đúng với mong muốn của nguyện vọng của gia chủ, thì có thể dễ dàng sửa chữa lại, một cách rất dễ dàng.

Trường hợp, sau khi hoàn thành và bàn giao nhà, ngôi nhà không phù hợp với ngôi nhà ban đầu thì gia chủ có thể khiếu nại lại đơn vị thi công.

Lúc này “Giấy trắng mực đen” rõ ràng, mọi vấn đề đều có thể giải quyết.

Đồng thời, có bản thiết kế sẵn trong tay ra chủ có thể dễ dàng giám sát quá trình thi công một cách chặt chẽ và sát sao.

Bản vẽ nhà giúp bạn có thể lường trước được các vấn đề phát sinh

Biệt thự 2 tầng mái Thái thu hút mọi ánh nhìn

Việc đầu tư một khoản chi phí nhỏ cho bản vẽ nhà  không có gì là lãng phí cả.

Chỉ với một khoản đầu tư nhỏ, mà bạn có thể nhìn thấy được một cách rõ ràng và chân thực nhất ngôi nhà tương lai của bạn.

Đồng thời, nếu có vấn đề gì ngoài ý muốn hoặc không hợp với phong cách mà bạn yêu thích, thì bạn có thể sửa lại một cách rất dễ dàng, không phải tốn kém.

Nhìn vào bản vẽ nhà, bạn có thể lường trước được những vấn đề sẽ phát sinh và phòng ngừa chúng. Không cho chúng cơ hội xảy ra.

Xây nhà theo bản vẽ nhà sẽ cho ra đời một căn nhà như ý nhất.

Nhà mái Thái sang trọng

Sau khi đã lường trước được những rủi ro, sửa đổi những sai lệch theo nguyện vọng. Thì việc xây dựng một căn nhà đẹp như tranh là một điều rất dễ dàng.

Lúc này, mọi vấn đề đều đã được giải quyết,. Không có những thắc mắc linh tinh hay những mơ hồ. Tất cả đều đã được hiện thực hóa.

Sau khi có được bản vẽ nhà, bạn sẽ có được một ngôi nhà đẹp, sang trọng phù hợp với mong ước của mình và đặc biệt tiết kiệm được rất nhiều chi phí không đáng có.

Hy vọng qua bài viết này của Xây dựng Bắc Trung Nam bạn đã có thể hiểu được tầm quan trọng của bản vẽ nhà, cũng như có cho mình một hình mẫu của ngôi nhà lý tưởng. Và sẽ tiết kiệm được nhiều chi phí khi xây dựng nhà.

Chúc bạn có một căn nhà đẹp như tranh vẽ, một căn nhà mà bạn mơ ước với chi phí thấp nhất.

Xây dựng Bắc Trung Nam hân hạnh đồng hành cùng bạn trong sự nghiệp xây dựng mái ấm tương lai của bạn.

Chúng tôi đảm bảo mang đến những ngôi nhà an toàn nhất, chất lượng nhất, sang trọng nhất và với giá cả ưu đãi nhất.

 Hotline: 0963 95 1111 (Tư vấn miễn phí).

 

Viết bình luận của bạn:
popup

Số lượng:

Tổng tiền: