BIỆT THỰ 2 TẦNG MÁI NHẬT LỘNG LẪY TẠI HÀ NỘI

 05/04/2022  0  Bình luận

 

biệt thự 2 tầng mái Nhật

Những năm gần đây, biệt thự 2 tầng mái Nhật đã vươn lên trở thành xu hướng trong thiết kế và xây dựng nhà ở tại Việt Nam. Theo thống kê của Google trong hai năm gần đây, lượng truy cập tìm kiếm về thiết kế và xây dựng biệt thự 2 tầng mái Nhật đang ngày một tăng lên.

Là một gia chủ tinh tế anh Tiến ở Hà Nội đã lựa chọn mẫu biệt thự 2 tầng mái Nhật để xây dựng cho công trình quan trọng của gia đình mình. Xây dựng Bắc Trung Nam tự hào là đơn vị thiết kế và thi công trọn gói cho mẫu biệt thự 2 tầng mái Nhật nhà anh Tiến. Cảm ơn gia đình anh Tiến đã tin tưởng và lựa chọn xây dựng Bắc Trung Nam.

Hãy cùng Xây dựng Bắc Trung Nam khám phá và tìm hiểu vẻ đẹp cuốn hút của mẫu biệt thự 2 tầng mái Nhật tại Hà Nội.

Nội dung chính

Biệt thự 2 tầng mái Nhật là gì? Đặc điểm của biệt thự 2 tầng mái Nhật?

Mẫu biệt th hai tầng mái Nhật đẹp nhất Hà Nội

Mặt tiền sang trọng của biệt thự 2 tầng mái Nhật lung linh tại Hà Nội

Hệ thống cột

Hệ thống ban công đón gió rộng rãi

Hệ thống cửa chính

Hệ thống cửa sổ

Phương án công năng mặt bằng khoa học của mẫu biệt thự hai tầng mái Nhật

Mặt bằng tầng 1 khoa học

Phương án mặt bằng tầng 2 của biệt thự 2 tầng mái Nhật lộng lẫy ở Hà Nội

Biệt thự 2 tầng mái Nhật là gì? Đặc điểm của biệt thự 2 tầng mái Nhật?

Biệt thự 2 tầng mái Nhật là mẫu biệt thự 2 tầng được thiết kế phần mái theo lối kiến trúc của Nhật Bản.

Phần mái không quá cao, mà có độ dốc vừa phải bao trùm toàn bộ ngôi nhà.

biệt thự 2 tầng mái Nhật đẹp

Nguy nga với góc nhìn tổng thể của biệt thự 2 tầng mái Nhật tại Hà Nội

Kiến trúc này giúp cho ngôi nhà không quá cồng kềnh nhưng thể hiện được sự bề thế và lộng lẫy. Nên mẫu biệt thự này nhanh chóng lấy lòng được các gia chủ và trở thành xu hướng thiết kế và xây dựng năm 2022.

Mẫu biệt th hai tầng mái Nhật đẹp nhất Hà Nội

Khi xây dựng biệt thự 2 tầng mái Nhật cần có sự tính toán chi li trong nhiều giai đoạn để tạo ra một không gian sống lộng lẫy nhất.

Mẫu biệt thự hai tầng mái Nhật nhà anh Tiến cũng không ngoại lệ. Nó là s kết hợp giữa nguyện vọng của anh Tiến và sự sáng tạo của các kiến trúc sư tại Xây dựng Bắc Trung Nam.

Chủ đầu tư: Anh Tiến.

Địa điểm xây dựng: Ba Vì - Hà Nội.

Mẫu thiết kế: Biệt thự 2 tầng mái Nhật.

Số tầng: 2 tầng.

Kích thước: 15,3x7,7m

Tổng diện tích: 241m².

Đơn vị thiết kế và thi công: Xây dựng Bắc Trung Nam.

Thời gian thi công: 03/ 2022.

Mẫu biệt thự 2 tầng mái Nhật của gia đình anh Tiến ấn tượng với không gian sống khoa học, trẻ trung và hiện đại.

Nơi đây mang đến một cuộc sống thoải mái nhất cùng không gian ấm áp nhất cho gia đình anh Tiến.

Đồng thời, công trình biệt thự 2 tầng mái Nhật nhà anh Tiến là niềm tự hào, là nhân tố làm nên uy tín và danh dự của công ty Xây dựng Bắc Trung Nam.

Mặt tiền sang trọng của biệt thự 2 tầng mái Nhật lung linh tại Hà Nội

Biệt thự 2 tầng mái Nhật nhà anh Tiến trở nên cực kỳ cuốn hút với phong cách thiết kế hiện đại, mang đến sự tươi mới và năng động cho toàn bộ ngôi nhà.

biệt thự 2 tầng mái Nhật lộng lẫy

Biệt thự 2 tầng mái Nhật lộng lẫy tại Hà Nội

Điểm nhấn đầu tiên cho toàn bộ căn biệt thự 2 tầng mái Nhật đó chính là hệ thống mái Nhật. Hệ thống mái Nhật với độ cao vừa phải, độ dốc hợp lý, giúp nâng tầm giá trị thẩm mỹ cho toàn bộ căn biệt thự 2 tầng mái Nhật.

Hệ thống mái ngói với độ dốc vừa phải giúp cho căn biệt thự dễ dàng thoát nước vào mùa đông, giảm nhiệt, giảm nóng vào mùa hè.

Hệ thống mái với màu xanh sẫm, kết hợp cùng tổng thể ngoại thất tạo nên một sự phối hợp tuyệt hảo giữa màu sắc và trang trí.

Hệ thống cột vuông được thiết kế và thi công tỉ mỹ, các đường nét vuông vức, rõ ràng. Mang đến một sự chỉnh chu trong xây dựng.

Hai cột chính đối xứng với nhau tạo chiều sâu và sự trang trọng cho căn biệt thự 2 tầng mái Nhật.

Ngoại thất được bao phủ bởi một màu trắng sữa, hòa cùng với màu xanh dương của bầu trời. Tạo nên một cảm giác thanh mát và yên bình trong toàn bộ căn biệt thự 2 tầng mái Nhật.

Hệ thống ban công đón gió rộng rãi

Ban công giúp cho căn biệt thự 2 tầng mái Nhật có thể đón được gió lành, điều hòa sinh khí trong căn biệt thự 2 tầng mái Nhật.

Đồng thời hệ thống ban công còn giúp cho căn biệt thự 2 tầng mái Nhật trở nên rộng rãi hơn. Đó cũng là một góc tuyệt vời cho gia chủ thưởng trà, ngắm hoa vào lúc bình minh lên hay ánh hoàng hôn buông xuống.

Ban công được trang trí với nhiều loại cây xanh, giúp cho căn biệt thự 2 tầng mái Nhật trở nên tươi mát hơn. Mang đến một không gian sống gần gũi với thiên nhiên, nhưng vẫn lưu giữ được nét nguy nga, tráng lệ.

Hệ thống lan can được phủ một lớp sơn màu đen, với những đường cong uốn lượn. Giúp cho căn biệt thự 2 tầng mái Nhật trở nên dịu dàng hơn nhưng vẫn đảm bảo được độ an toàn và chắc chắn cho toàn bộ công trình.

Hệ thống cửa chính được làm bằng gỗ từ thiên nhiên, cửa gỗ giúp tạo nguồn sinh khí tốt, lưu giữ sự ấm áp và hạnh phúc cho toàn bộ căn biệt thự 2 tầng mái Nhật.

biệt thự 2 tầng mái Nhật lung linh

Mặt bên tráng lệ của biệt thự 2 tầng mái Nhật  tại Hà Nội

Hệ thống cửa sổ được làm bằng kính cường lực cùng với viền nhôm, tạo nên sự sang trọng, sáng sủa và vẫn đảm bảo tính kiên cường, rắn chắc cho căn biệt thự 2 tầng mái Nhật.

Để tránh sự đơn điệu và nhàm chán cho tổng thể ở ngoại thất căn biệt thự 2 tầng mái Nhật, các kiến trúc sư tại Xây dựng Bắc Trung đã trang trí các đường gờ với màu sắc tương phản. Mang đến sự hoà hợp về màu sắc cho tổng thể căn biệt thự.

Chân tường được thiết kế thành các bồn hoa. Có thể trồng hoa vào đó để giúp cho căn biệt thự 2 tầng mái Nhật có sự hài hòa giữa kiến trúc với thiên nhiên. Tạo nên một tổng thể hoàn mỹ nhất.

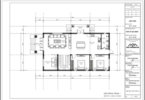
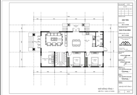
Phương án công năng mặt bằng khoa học của mẫu biệt thự hai tầng mái Nhật

Điều làm nên nét đẹp, sự cuốn hút cho biệt thự 2 tầng mái Nhật đó chính là phương án mặt bằng.

Mặt bằng tầng 1 khoa học

Phương án thiết kế mặt bằng tầng 1 của biệt thự 2 tầng mái Nhật nhà anh Tiến bao gồm

Phòng khách, phòng thờ, phòng bếp + ăn, 2 phòng ngủ, phòng vệ sinh.

Bước qua những bậc tam cấp đầu tiên về sảnh chính, khách nhân sẽ bị chóng ngợp với phòng khách.

Bố trí mặt bằng tầng 1 khoa học nhất

Phòng khách được coi như là căn phòng quan trọng đối với gia chủ. Nó thể hiện tầm nhìn và định hướng của gia chủ.

Kế bên phòng khách là phòng thờ, mang đến một không gian sống trang nghiêm, thanh lịch.

Tiếp theo đó chính là phòng bếp + ăn, phòng bếp được tích hợp với phòng ăn giúp cho không gian vừa rộng rãi nhưng không mất đi sự đầm ấm trong gia đình.

2 phòng ngủ với không gian rộng rãi mang đến một không gian riêng tư cho các thành viên trong gia đình.

Phòng vệ sinh được thiết kế cuối cùng, thể hiểu được sự khoa học trong thiết kế.

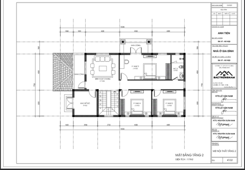
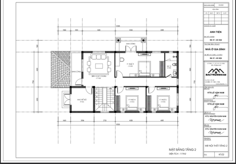
Phương án mặt bằng tầng 2 của biệt thự 2 tầng mái Nhật lộng lẫy ở Hà Nội

Tầng 2 bao gồm: 3 phòng ngủ, phòng sinh hoạt chung, phòng kho, phòng vệ sinh.

Nếu tầng 1 là nơi để gia chủ đón tiếp khách, là phòng thờ. Thì tầng 2 chính là không gian riêng tư của các thành viên trong gia đình.

Tầng 2 được bố trí 3 phòng ngủ rộng rãi, phù hợp với các gia đình có đông thành viên.

Kết cấu bố trí tầng 2 của biệt thự 2 tầng mái Nhật  tại Hà Nội

Điểm nhấn của tầng 2 đó chính là phòng sinh hoạt chung. Đây là nơi các thành viên trong gia đình có thể quây quần bên nhau, tâm sự với nhau.

Tầng hai có kho chứa đồ giúp cho căn nhà của gia đình anh Tiến trở nên sạch sẽ và rộng rãi hơn.

Như vậy, qua bài viết này Xây dựng Bắc Trung Nam đã chia sẻ với quý độc giả về căn biệt thự 2 tầng mái Nhật của gia đình anh Tiến tại Ba Vì, Hà Nội.

Hy vọng qua bài viết này, các gia chủ tinh tế đã lựa chọn cho mình được mẫu nhà đẹp mà mình hài lòng nhất. Hãy liên hệ với Xây dựng Bắc Trung Nam để biết rõ hơn chi tiết.

Hotline: 0963 95 1111 (Tư vấn miễn phí).

 

Viết bình luận của bạn:
popup

Số lượng:

Tổng tiền: