KHÁM PHÁ MẪU NHÀ CẤP 4 MÁI NHẬT SANG TRỌNG

 11/03/2022  0  Bình luận

KHÁM PHÁ MẪU NHÀ CẤP 4 MÁI NHẬT SANG TRỌNG TẠI XÂY DỰNG BẮC TRUNG NAM

Nhà cấp 4 mái Nhật đẹp mang trong mình nét đẹp hài hòa giữa thiên nhiên và con người. Là tổ hợp của sự nhẹ nhàng, thanh mát trong từng hàng cây mái lá, là sự sang trọng trong từng đường nét thiết kế. Nhà cấp 4 mái Nhật đẹp không những sang trọng mà còn đẳng cấp, quý phái là sự kết hợp hài hòa giữa phong cách Nhật Bản và phương Tây cổ điển. Sự khéo léo trong cách thiết kế và thi công đã làm nên một siêu phẩm nhà cấp 4 mái Nhật đẹp.

Nhà cấp 4 mái Nhật đẹp luôn có sức hút diệu kỳ đối với mọi gia chủ thế nên nó đã và đang là xu hướng xây dựng được nhiều gia chủ lựa chọn. Hãy cùng Xây dựng Bắc Trung Nam  khám phá vẻ đẹp và sức hút của nhà cấp 4 mái Nhật đẹp này nhé.

Nội Dung

Hình ảnh 3D mặt tiền nhà cấp 4 mái Nhật đẹp

Phối cảnh mặt bên của nhà cấp 4 mái Nhật đẹp

Góc nhìn tổng thể của nhà cấp 4 mái Nhật đẹp

Mặt bằng công năng của mẫu nhà cấp 4

Hình ảnh 3D mặt tiền nhà cấp 4 mái Nhật đẹp

Mặt tiền nhà cấp 4 mái Nhật đẹp

Nhà cấp 4 mái Nhật đẹp được thiết kế theo phong cách truyền thống của Nhật Bản dưới bàn tay tài hoa của các kiến trúc sư tại Xây dựng Bắc Trung Nam, đã khoác cho nó một “tấm áo mới”, phù hợp với xu hướng, mong muốn của hàng triệu gia chủ Việt. Mang lại cảm giác nhẹ nhàng, thanh lịch, thu hút mọi ánh nhìn.

Ngoại thất được trang trí tỉ mỉ cùng với phương án thi công khéo léo càng làm nổi bật căn nhà.

Điểm nổi bật đầu tiên của căn nhà là sự hài hoà giữa tone màu xanh - trắng, màu sắc của sự sang trọng, thanh lịch cho gia chủ.

Lung linh với nhà cấp 4 mái Nhật đẹp

Điểm xuyến lên tone màu xanh - trắng đó chính là hệ thống cửa. Cửa chính làm bằng gỗ với những họa tiết hình rẽ quạt, mang lại cảm giác huyền bí thu hút mọi ánh nhìn. Đồng thời còn thu hút vận khí tốt sản sinh ra hòa khí, ấm áp trong ngôi nhà.

Cửa sổ được làm bằng kính cường lực với viền là nhôm giúp căn nhà rửa nên sáng sủa hơn thoáng mát hơn.

 Nhà cấp 4 mái Nhật đẹp

Không chỉ vậy phần chân tường còn được trang trí bằng cách ốp những viên gạch màu xám tạo nên nét tương phản, độc đáo.

Để cho ngôi nhà cấp 4 mái Nhật đẹp trở thanh lịch, quyến rũ hơn, Xây dựng Bắc Trung Nam đã biến tấu chân tường thành khu vườn nho nhỏ, trang trí vào đó là những tiểu hoa cỏ, tiểu cây xanh giúp cho ngôi nhà trở nên thanh mát hơn, thân tiện hơn. Đây chính là điểm nhấn của ngôi nhà.

Ngôi nhà trở nên mạnh mẽ hơn với những khổi trụ vuông. Giữa phong cách thiết kế truyền thống của Nhật Bản các trụ cột hình vuông nổi bật lên, mang đến hơi thở hiện đại phóng khoáng, góp phần thể hiện sự cao quý của gia chủ.

 Nhà cấp 4 mái Nhật đẹp, sang trọng

Ngôi nhà cấp 4 mái Nhật đẹp được Xây dựng Bắc Trung Nam thiết kế và thi công theo phong cách cổ truyền, nhưng cũng mang hơi thở tinh túy của thời đại. Giản lược đi những chi tiết cầu kỳ thay vào đó là những hoa văn đơn giản nhưng sang trọng, mang tầm vóc của thời đại.

Tạo nên một không gian sống thân thiện, hài hòa, xua tan đi cảm giác chật chội oi bức. Góp phần nâng cao giá trị, địa vị của gia chủ, cũng như giúp gia chủ cảm thấy thoải mái hơn khi về đến nhà.

Phối cảnh mặt bên của nhà cấp 4 mái Nhật đẹp

Để tạo nên phong cách hiện đại cũng như sự khỏe khoắn, trẻ trung của ngôi nhà. Các kiến trúc sư tài ba tại Xây dựng Bắc Trung Nam đã bố trí thêm hệ thống trụ bên hông ngôi nhà.

Lộng lẫy với mặt bên  nhà cấp 4 mái Nhật đẹp

Nhìn ở góc nghiêng này ta có thể thấy rõ hết về đẹp của hệ thống mái ngói.

Mái ngói phong cách Nhật Bản dưới sự tài hoa và kinh nghiệm của các kiến trúc sư tại Xây dựng Bắc Trung Nam đã trở nên ấn tượng hơn với tone màu xanh thanh lịch, kết hợp với độ dốc vừa phải nó không quá cao như hệ thống mái Thái nhưng thể hiện được nét dịu dàng, quyến rũ.

Mặt bên nhà cấp 4 mái Nhật sang trọng

Nhà cấp 4 mái Nhật đẹp mang âm hưởng của người Việt nhưng không làm mất đi phong cách, linh hồn của nhà mái Nhật truyền thống. Các hệ thống mái xếp lên nhau tạo nên một tổng thể hoàn mỹ giữa cánh rừng xanh.

Góc nhìn tổng thể của nhà cấp 4 mái Nhật đẹp

Nhìn từ trên cao xuống chúng ta sẽ mê mẫn với nét đẹp của nhà cấp 4 mái Nhật.

Góc nhìn tổng thể  nhà cấp 4 mái Nhật đẹp

Hình ảnh mái ngói nằm nhấp nhô giữa cánh rừng xanh mang lại cảm giác hài hòa đến khó tả. Không quá cầu kỳ, hoa lệ cũng không quá cứng cáp, kiên cường. Nhà cấp 4 mái Nhật đẹp mang trong mình vẻ đẹp thuần khiết, thanh lịch.

 Nhà cấp 4 mái Nhật đẹp ngất ngây

Hệ thống mái Nhật với độ dốc vừa phải không chỉ mang lại tính thẩm mỹ cao mà nó còn góp phần nâng cao tuổi thọ ngôi nhà, giúp ngôi nhà dễ dàng hơn trong việc thoát nước.

 Nhà cấp 4 mái Nhật đẹp xuất sắc

 Không quá cầu kỳ nhưng vẫn hiện đại sang trọng và đẳng cấp.

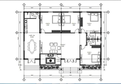
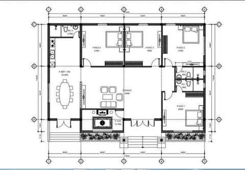
Mặt bằng công năng của mẫu nhà cấp 4

Mặt bằng công năng của nhà cấp 4 mái Nhật đẹp được chia làm 4 phòng ngủ, 1 phòng khách, 1 phòng thờ, 1 phòng bếp với phòng ăn và 3 phòng vệ sinh.

Phương án mặt bằng công năng nhà cấp 4 mái Nhật đẹp

Phòng khách của nhà cấp 4 mái Nhật đẹp được thiết kế và trang trí sang trọng, thanh lịch nhưng vẫn tiết kiệm được chi phí.

Phòng khách sẽ là nơi gia chủ đón tiếp khách quý, với thiết kế sang trọng này phần nào thể hiện địa vị và đẳng cấp của gia chủ. Cũng như tấm lòng, sự hiếu khách của gia chủ đối với vị khách được đón tiếp.

Phòng thờ được thiết kế bên cạnh phòng khách, có một không gian riêng. Với những nét trang trí truyền thống mang lại sự ấm áp và linh thiêng, đó là một sự kính trọng của gia chủ với ông cha hồi trước.

Mẫu nội thất trang trí nhà cấp 4 mái Nhật

Phòng bếp và phòng ăn được kết hợp lại với nhau. Nhưng dưới sự tài hoa và tỉ mỉ, công phu của các kiến trúc sư tại Xây dựng Bắc Trung Nam đã khiến cho căn phòng này trở nên hài hòa, ấm áp.

Không còn cảm giác chật chội khi kết hợp phòng ăn và phòng bếp lại với nhau. Mà với diện tích vừa đủ, thiết kế và trang trí khoa học, hiện đại giúp cho các thành viên trong gia đình có nhiều không gian sum họp bên nhau hơn, chia sẻ với nhau những cảm xúc buồn vui.

Cửa sổ phòng bếp được thiết kế bằng kính giúp cho ngôi nhà hấp thụ được nhiều ánh sáng hơn, đồng thời các thành viên trong gia đình có thể vừa ăn cơm vừa ngắm cảnh bên ngoài.

Mẫu trang trí nội thất nhà cấp 4 mái Nhật

Với hệ thống 4 phòng ngủ và 3 nhà vệ sinh được thiết kế khoa học, hợp lý mang lại tính riêng tư cho các thành viên trong gia đình. Mỗi thành viên đều sẽ có cho mình một khoảng không gian riêng.

Mẫu thiết kế nhà cấp 4 mái Nhật đẹp sang trọng hiện đại với chi phí rất rẻ, đã và đang được rất nhiều gia chủ tin yêu và lựa chọn khi xây nhà.

Để sở hữu ngay cho mình một ngôi nhà đẹp như vậy. Các bạn hãy liên hệ ngay với hotline: 0963.95.1111 của Xây dựng Bắc Trung Nam để được tư vấn miễn phí, nhận những gói ưu đãi nhất, được thiết kế và thi công một ngôi nhà cấp 4 mái Nhật chất lượng tốt nhất an toàn nhất nhé.

Viết bình luận của bạn:
popup

Số lượng:

Tổng tiền: