LUNG LINH BIỆT THỰ PHỐ 3 TẦNG  SANG CHẢNH NHẤT SƠN LA

 01/04/2022  0  Bình luận

biệt thự phố 3 tầng

Nhà không chỉ là nơi chắn gió che mưa, mà là nơi thể hiện đẳng cấp và địa vị của gia chủ. Vậy lên, nhu cầu của gia chủ khi xây dựng nhà rất cao. Có rất nhiều mẫu biệt thự đã ra đời để thỏa mãn nhu cầu đó, và tiêu biểu chính là mẫu thiết kế biệt thự phố 3 tầng. Mẫu thiết kế biệt thự phố 3 tầng hiện tại đang rất phổ biến tại Việt Nam.

Và chị Mừng ở Yên Châu Sơn La cũng không ngoại lệ. Là một gia chủ tinh tế và thông minh chị Mừng đã chọn mẫu thiết kế biệt thự phố 3 tầng để xây dựng công trình quan trọng của biệt thự mình.

Xây dựng Bắc Trung Nam chân thành cảm ơn chị Mừng đã lựa chọn Xây dựng Bắc Trung Nam là đơn vị thiết kế và thi công trọn gói cho biệt thự mình. Hãy cùng Xây dựng Bắc Trung Nam khám phá vẻ đẹp lộng lẫy của biệt thự phố 3 tầng sang trọng nhất tại Sơn La này.

Nội Dung Chính

Thông tin chung

Thông tin chi tiết của biệt thự phố 3 tầng đẹp

Mặt tiền sang trọng biệt thự phố 3 tầng ba tầng.

Hệ thống mái bằng

Trang trí

Khoảng sân

Phương án mặt bằng khu biệt thự phố 3 tầng

Phòng thờ

3 phòng ngủ

Thông tin chung

biệt thự phố 3 tầng

Biệt thự phố 3 tầng với kiến trúc sang trọng

Mẫu biệt thự phố 3 tầng luôn gây ấn tượng mạnh mẽ với người nhìn với sự sang trọng và sáng tạo. Dưới bàn tay tài hoa và dày dặn kinh nghiệm của các kiến trúc sư tại Xây dựng Bắc Trung Nam, mẫu biệt thự phố 3 tầng của chị Mừng được thiết kế theo phong cách kiến trúc hiện đại, là sự phối hợp hài hòa giữa các hình khối trong một không gian hợp lý, đem đến một tạo hình bắt mắt.

Kiến trúc hiện đại, mạnh mẽ kết hợp với hiệu ứng thu hút ánh sáng và màu sắc, là một siêu phẩm nghệ thuật trong căn biệt thự phố 3 tầng đẹp.

Thoát khỏi nhiều quy chuẩn gò bó, rập khuôn thay vào đó là sự phá cách, mạnh mẽ trong thiết kế và màu sắc. Mang đậm dấu ấn cá nhân hóa của chủ nhân căn biệt thự.

Thông tin chi tiết của biệt thự phố 3 tầng đẹp

biệt thự phố 3 tầng

Mẫu biệt thự phố 3 tầng lộng lẫy nhất Sơn La

Chủ đầu tư: Chị Mừng

Địa chỉ xây dựng: Yên Châu - Sơn La

Quy mô dự án: biệt thự phố 3 tầng + 1 tum.

Phương án công năng mặt bằng: 1 phòng thờ, 2 phòng khách, phòng bếp + ăn, 3 phòng ngủ, 2 phòng tắm, 3 phòng WC, sân ướt, sân trước, sân phơi.

Năm thiết kế: 2021

Đơn vị thiết kế và thi công: Xây dựng Bắc Trung Nam.

Mẫu thiết kế biệt thự phố 3 tầng ba tầng với lối kiến trúc lộng lẫy, mặt tiền thoáng mát, lung linh đi cùng xu hướng thiết kế được ưa chuộng chắc chắn sẽ mang đến cho gia đình gia chủ những sự lựa chọn tuyệt vời nhất.

Mang trong mình tính thẩm mỹ cao, công năng tiện dụng và độ bền cùng năm tháng. Xuất hiện ở khắp phố lớn ngõ nhỏ Việt Nam. Biệt thự phố 3 tầng nhanh chóng vươn lên trở thành đứa "con gái rượu" khi xây dựng của hầu hết gia chủ Việt Nam.

Mặt tiền sang trọng biệt thự phố 3 tầng ba tầng.

biệt thự phố 3 tầng

Mẫu biệt thự phố 3 tầng quyến rũ mọi ánh nhìn

Được thiết kế và xây dựng theo phong cách hiện đại, đề cao sự trẻ trung và năng động. Việc thiết kế và phân chia bố cục, sử dụng các loại vật liệu tạo nên một điểm nhấn phá cách trong tổng thể của biệt thự phố 3 tầng.

Mang một màu trắng thanh lịch là màu sắc chủ đạo cho cả công trình. Kết hợp với hệ thống lan can bằng sắt, uốn lượn với hoa văn màu đen giúp tạo nên nét quyến rũ của căn biệt thự phố 3 tầng.

Hệ thống cửa chính được làm bằng kính cường lực viền nhôm màu đen, hoà với tông màu trắng tạo nên sự sang trọng và quý tộc cho toàn bộ căn biệt thự phố 3 tầng này.

Hệ thống cửa kính không chỉ nói lên vẻ sang trọng của căn biệt thự phố 3 tầng, mà còn giúp cho căn biệt thự hấp thụ được nhiều ánh sáng từ mặt trời. Giúp cho căn biệt thự trở nên ấm áp, tạo ra nguồn sinh khí, giúp ngôi biệt thự trở nên hài hòa và hạnh phúc hơn.

Bên trong cửa kính được lắp thêm một lớp rèm. Lớp rèm cửa này giúp cho căn biệt thự trở nên trang trọng, tinh tế hơn nhưng đồng thời nó cũng chính là thiết bị giảm nhiệt tối ưu, thân thiện với môi trường vào mùa nắng nóng.

Điểm nhấn của căn biệt thự này đó chính là hệ thống cột vuông, màu trắng kết hợp với những hoa văn điêu khắc chỉnh chu và tỉ mỉ. Nâng tâm giá trị thẩm mỹ của tổng thể căn biệt thự phố 3 tầng.

Hệ thống ban công rộng rãi, giúp cho ngôi biệt thự có thể đón gió tẩy trần, lấy ánh sáng. Giúp điều hòa không khí trong ngôi biệt thự, giúp ngôi biệt thự đó được những nguồn sinh khí tốt và đào thải những luồng khí bất lợi cho gia chủ.

Từ cách bố trí này chúng ta có thể dễ dàng nhận thấy ở tầng 2 và tầng 3 của căn biệt thự sẽ được cung cấp một lượng gió và nắng mặt trời tự nhiên dồi dào.

Tạo nên một không gian sống thân thiện với môi trường mà nhiều người hằng mong ước.

biệt thự phố 3 tầng

Ngất ngây với góc nhìn tổng thể của biệt thự phố 3 tầng

Hệ thống mái bằng càng tôn lên sự đơn giản nhưng sang trọng trong phong cách thiết kế hiện đại. Mái bằng giúp ngôi biệt thự trở nên trẻ trung hơn, phóng khoáng hơn giữa bầu trời bao la.

Tuy nhiên, căn biệt thự phố 3 tầng này vẫn mang âm hưởng cổ xưa của phong cách tân cổ điển với các hoa văn trang trí uốn lượn.

Bên dưới mái bằng có họa tiết hoa văn trang trí phong thủy. Với tạo hình này, Xây dựng Bắc Trung Nam muốn đem đến cho chị Mừng và gia đình một nguồn phong thủy tốt nhất, một niềm tin, một hy vọng cho tương lai tươi sáng, cho hạnh phúc và nâng đỡ sự nghiệp.

Nếu như toàn bộ tầng 2 và tầng 3 chủ đạo là màu trắng, thì ở mặt tiền sảnh lại được ốp gạch màu cam. Gạch ốp ở tầng trệt cũng đồng thời chính là màng bảo vệ, sẽ giúp căn biệt thự ngăn chặn những bão giông, những vết bẩn từ bên ngoài.

Gạch ốp ở tầng trệt không chỉ làm điểm nhấn cho cả căn biệt thự mà đó cũng là một màu sắc có ý nghĩa phong thủy cực cao. Theo quan điểm phong thủy xưa của người Việt, màu đỏ, màu cam là những màu sắc nổi bật mang lại sự may mắn và điềm lành cho gia chủ. Với một mong muốn bình an và thịnh vượng.

Trang trí các loại cây phong thủy ở trước cửa biệt thự cũng giúp vượng vận cho gia chủ.

Khoảng sân trống được các kiến trúc sư tại Xây dựng Bắc Trung Nam lựa chọn các loại gạch chống trượt để ốp.

Các loại gạch này mà không chỉ mang tính thẩm mỹ cao, đồng thời còn giúp bảo vệ môi trường, giúp cho căn biệt thự không bị trơn trượt vào mùa mưa.

Xem thêm:

Thiết kế và trang trí nhà phố đẹp hiện đại nhất 2022

TOP 7 mẫu nhà đẹp giá rẻ nhìn là muốn xây

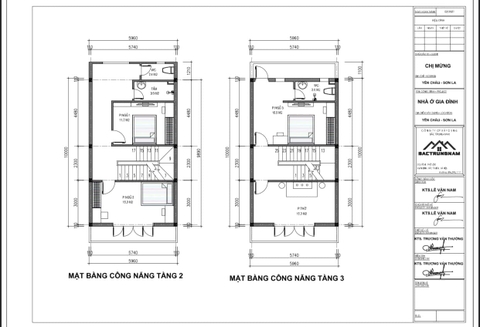
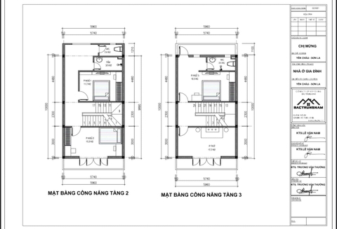
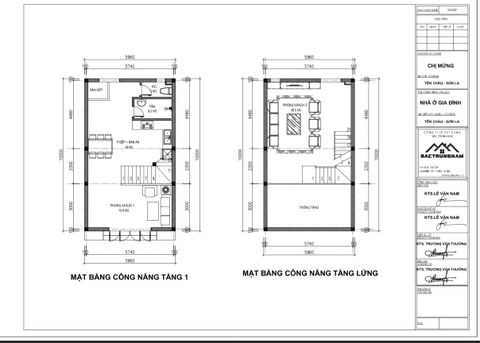
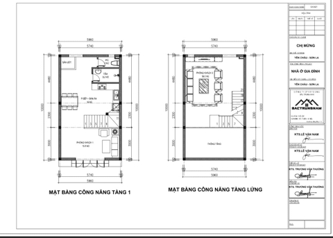
Phương án mặt bằng khu biệt thự phố 3 tầng

mặt bằng biệt thự phố 3 tầng

Phương án mặt bằng tầng 1 + tầng lửng của mẫu biệt thự phố 3 tầng

Từ cổng chính bước vào trong biệt thự là không gian nội thất phòng khách, thiết kế đơn giản, tinh tế nhưng vô cùng tiện nghi và hiện đại. Thể hiện sự đẳng cấp và thời thượng của gia chủ.

Việc bố trí 2 phòng khách giúp cho gia chủ có nhiều không gian hơn trong việc đón tiếp quý nhân.

Tiếp theo phòng khách đó chính là phòng bếp + ăn, là nơi sinh hoạt của cả gia đình và thêm một phòng vệ sinh.

Bố trí mặt bằng tầng 2 và tầng 3 của biệt thự phố 3 tầng

Phòng thờ được bố trí ở lầu 3, tạo một không gian thanh tịnh và yên tĩnh, xứng đáng cho một nơi trang nghiêm.

3 phòng ngủ là một không gian vừa đủ cho các thành viên trong gia đình. Nó thể hiện sự ân cần và tỉ mĩ trong khâu thiết kế cũng như xây dựng.

 phòng vệ sinh và phòng tắm thiết kế riêng cho từng tầng, nói lên tính khoa học và tiện dụng trong thiết kế và xây dựng.

Mẫu thiết kế biệt thự biệt thự phố 3 tầng ba tầng theo phong cách kiến trúc hiện đại với phương án công nên mặt bằng khoa học. 

Kết hợp với kiến trúc tinh tế và thẩm mỹ, chi phí xây dựng không quá cao đã và đang nhận được rất nhiều lời khen, lời phản hồi tích cực từ gia đình chị Mừng và những người dân sống cùng khu phố.

biệt thự phố 3 tầng

Mẫu biệt thự phố 3 tầng lộng lẫy

Hy vọng với mẫu thiết kế biệt thự phố 3 tầng này sẽ làm hài lòng nhiều quý gia chủ hơn nữa. Đồng thời, Xây dựng Bắc Trung Nam mong rằng quý gia chủ sớm hiện thực hóa được công trình biệt thự ở như ý của mình, vừa có thể tiết kiệm chi phí vừa sở hữu được không gian sống hoàn mỹ.

Qua bài viết này, nếu quý gia chủ yêu thích mẫu thiết kế biệt thự phố 3 tầng này, hay bất kỳ mẫu biệt thự đẹp và muốn xây biệt thự đẹp với chi phí xây dựng tiết kiệm, an toàn và bền vững cùng thời gian hãy liên hệ với Xây dựng Bắc Trung Nam qua:

Hotline: 0963951111 (Tư vấn miễn phí).

 

Viết bình luận của bạn:
popup

Số lượng:

Tổng tiền: