NGẤT NGÂY TRƯỚC VẺ ĐẸP GIẢN DỊ CỦA NHÀ CẤP 4 MÁI THÁI

 31/03/2022  0  Bình luận

nhà cấp 4 mái Thái

Ngày nay, nhu cầu xây dựng nhà đẹp, nhà sang trọng với chi phí ưu đãi đang là xu hướng được nhiều gia chủ quan tâm. Có vô vàn mẫu nhà được ra đời nhưng tiêu biểu nhất vẫn là mẫu nhà cấp 4 mái Thái. Nhà cấp 4 mái Thái là mẫu nhà có giá trị thẩm mỹ cao, được thiết kế hợp với phong thủy của gia chủ và tiết kiệm chi phí xây dựng. Với sự tinh tế và trí tuệ của mình bác Sớm ở Nông Cống - Thanh hóa đã lựa chọn mẫu nhà cấp 4 mái Thái để xây dựng cho công trình to lớn của gia đình mình. Xây dựng Bắc Trung Nam hân hạnh là đơn vị thiết kế và thi công nhà cấp 4 mái Thái trọn gói cho bác Sớm.

Bài viết này Xây dựng Bắc Trung Nam sẽ giới thiệu với quý độc giả mẫu nhà cấp 4 mái Thái của bác Sớm đang được ưa chuộng nhất hiện nay.

Nội Dung Chính

Tổng quan về nhà cấp 4 mái Thái thanh lịch

View mặt tiền sang chảnh của nhà cấp 4 mái Thái

Mặt bên quyến rũ của nhà cấp 4 mái Thái

Ngất ngây trước góc nhìn tổng thể của nhà cấp 4 mái Thái

Tổng quan về nhà cấp 4 mái Thái thanh lịch

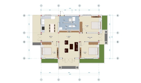
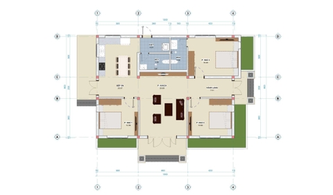
mặt bằng nhà cấp 4 mái Thái

Phương án mặt bằng mẫu nhà cấp 4 mái Thái hiện đại

Với công năng sử dụng: 3 phòng ngủ, 1 phòng khách, 1 bếp ăn, 2 phòng vệ sinh, 1 phòng tắm. Mẫu thiết kế nhà cấp 4 mái Thái này có thể đáp ứng được các yêu cầu của gia chủ và với chi phí hợp lý nhất.

Nhà cấp 4 mái Thái là mẫu nhà được nhiều gia chủ ưa chuộng nhất hiện nay bởi nó mang trong mình vẻ sang trọng, tinh tế của phong cách hiện đại. Vẫn giữ được những nét tinh túy trong kiến trúc thiết kế cổ điển.

Và hơn hết, với hệ thống mái Thái cao ráo, nhà cấp 4 mái Thái đã làm xiêu lòng mọi gia chủ.

Đặc biệt, với kiến trúc mái của nhà cấp 4 mái Thái vừa có thể giảm nhiệt vào mùa hè và có thể thoát nước dễ dàng vào mùa đông, dễ dàng thích hợp với điều kiện thời tiết tại Việt Nam.

Sang trọng về mặt thẩm mỹ, hài hòa về mặt phong thủy nhưng giá cả để xây dựng nhà cấp 4 mái Thái rất hợp lý và phải chăng. Hợp với túi tiền của hầu hết các gia chủ Việt Nam. Nên mẫu nhà cấp 4 mái Thái trở thành mẫu nhà được ưa chuộng nhất tại Việt Nam.

View mặt tiền sang chảnh của nhà cấp 4 mái Thái

Lộng lẫy với mặt tiền nhà cấp 4 mái Thái

Tổng thể ngôi nhà cấp 4 mái Thái được thiết kế theo phong cách hiện đại, lấy nét giản dị làm phong cách chủ đạo cho xuyên suốt công trình. Vẻ đẹp thanh thuần nhưng vẫn toát lên được nét sang trọng và cuốn hút ánh nhìn. Vì thế nên thấy mẫu nhà cấp 4 mái Thái này đang được rất nhiều gia chủ "săn đón" khi thiết kế và xây dựng nhà.

Sự giản đơn được bắt đầu ở cách phối màu của toàn bộ ngoại thất. Ngoại thất được phủ một lớp sơn chống nóng và chống nước màu trắng sữa, một màu sắc vô cùng hài hòa và tinh tế. Lớp sơn này giúp cho ngôi nhà giảm được cái nóng gay gắt vào mùa hè và đồng thời giúp cho ngôi nhà không bị bám nước, không bị đóng rong, rêu vào mùa mưa.

Đây chính là bí quyết lưu giữ thanh xuân cho ngôi nhà của Xây dựng Bắc Trung Nam.

Hòa với tông màu trắng đó chính là màu ghi. Bề mặt dưới mái Thái được thiết kế màu ghi trắng với các đường chỉ kẻ ngang, các đường viền kẻ tạo điểm nhấn, giúp cho ngôi nhà đơn giản nhưng không nhạt nhòa.

Điểm đặc trưng của nhà cấp 4 mái Thái đó chính là hệ thống mái Thái. Mái Thái với độ dốc vừa phải giúp cho tổng thể ngôi nhà trở nên thoáng mát hơn, hoành tráng hơn. Tạo nên một sự bề thế cho ngôi nhà.

Bất cứ một sự lựa chọn nào của gia chủ đều hướng đến tính an toàn và chất lượng. Đặc biệt an toàn chất lượng và tiết kiệm đó chính là tiêu chí hàng đầu mà nhiều gia chủ đưa ra và mẫu nhà cấp 4 mái Thái này hoàn toàn có thể đáp ứng được các yêu cầu này của gia chủ.

Điểm nhấn đặc trưng của hệ thống mái Thái đó chính là được lợp bằng ngói màu xanh sẫm, những viên ngói to, gợn sóng giúp nâng lên uy nghiêm, đồ sộ của căn nhà.

Mẫu nhà cấp 4 mái Thái thanh lịch và trang nhã

Ngói này là loại ngói có khả năng cách nhiệt tốt, giúp giảm nhiệt hiệu quả cho ngôi nhà vào mùa nắng nóng gay gắt.

Đồng thời với hệ thống mái Thái này giúp cho ngôi nhà dễ dàng thoát nước, tránh trường hợp ứ đọng nước.

Nếu gam màu trắng tạo nên sự thanh lịch của ngôi nhà, thì màu xanh của hệ thống mái Thái giúp cho ngôi nhà trở nên hài hòa hơn, tạo nên sự hòa hợp của tổng thể nội thất và ngoại thất.

Điểm nổi bật nhất của ngoại thật đó chính là cửa chính được làm bằng gỗ lim, gỗ tự nhiên.

Loại gỗ tự nhiên với màu đỏ sậm, có những hoa văn được điêu khắc theo phong thủy, phụ trợ cho sự phát triển của gia chủ.

Giữa tông màu trắng làm chủ đạo, nổi bật lên chính là hệ thống cửa gỗ màu đỏ giúp cho kinh nhà trở nên sinh động hơn, có sinh khí hơn.

Cửa gỗ giúp cho căn nhà sản sinh ra nguồn năng lượng tích cực, điều hòa không khí trong nhà giúp cho gia chủ có một cuộc sống thịnh vượng và hạnh phúc.

Hệ thống cửa sổ được làm bằng kính cường lực viền nhôm. Nhôm giúp bảo vệ cho cửa sổ khỏi những tác động vật lý.

Kính cường lực giúp cho ngôi nhà trở nên sáng sủa hơn, đón nhận được nhiều ạ anh đánh mặt trời.

Sự kết hợp hài hòa giữa cửa chính và cửa sổ, cửa gỗ và cửa kính, chúng tương sinh với nhau, Kim sinh Thủy, Thủy sinh Mộc chúng hỗ trợ cho nhau và hỗ trợ cho tương lai và bản mệnh của gia chủ.

Chưa dừng lại ở đó, điểm nổi bật cho phong cách hiện đại của nhà cấp 4 mái Thái đó chính là cột chính của căn nhà.

Các cột nhà hình trụ vuông, với những đường gờ vuông vắn, giúp cho ngôi nhà trở nên chỉnh chu hơn. Chân cột được ốp bằng gạch màu đen làm nổi bật lên giữa tông màu trắng sữa. Trên đầu cuộc được điêu khắc bằng các đường gờ nổi, tạo nên điểm nhấn cho cả căn nhà.

Để cho ngôi nhà trở nên ấm áp hơn, các kiến trúc sư tại Xây dựng Bắc Trung Nam đã lắp hệ thống đèn trần ngoài sảnh. Loại đèn âm trần này chính là đại diện cho phong cách thiết kế hiện đại, là sản phẩm của thời đại và công nghệ.

Mặt tiền của ngôi nhà cấp 4 mái Thái càng trở nên lung linh và lộng lẫy hơn với các chậu hoa, bồn hoa.

Tối ưu hóa khoảng trống ở chân tường các kiến trúc sư tại Xây dựng Bắc Trung Nam đã biến hóa chúng thành những vườn hoa nhỏ xinh giữa sân nhà. Giúp cho ngôi nhà gần gũi với thiên nhiên hơn, tạo cảm giác thanh mát, tươi mới cho toàn bộ căn nhà.

Mặt bên quyến rũ của nhà cấp 4 mái Thái

nhà cấp 4 mái Thái

Lung linh với mặt bên nhà cấp 4 mái Thái tại Xây dựng Bắc Trung Nam

Không chỉ lộng lẫy làm xiêu lòng ra chủ bởi mặt tiền, mà mặt bên của nhà cấp 4 mái Thái cũng khiến nhiều gia chủ đổ gục.

Mặt bên của nhà cấp 4 mái Thái nổi bật với sảnh phụ. Sảnh phụ của nhà cấp 4 mái Thái hướng theo hướng vuông góc với sảnh chính.

Sảnh phụ là nơi giúp cho lưu thông không khí trong nhà cấp 4 mái Thái, đào thải những luồng khí xấu và chào đón những luồng khí tốt đến với căn nhà. Nâng đỡ cho sự phát triển sự nghiệp của gia chủ, sự bình an và hạnh phúc của các thành viên trong gia đình.

Đồng thời sảnh phụ sẽ là cánh cửa cứu nguy trong các trường hợp không cấp.

Ngất ngây trước góc nhìn tổng thể của nhà cấp 4 mái Thái

nhà cấp 4 mái Thái

Góc nhìn tổng thể xinh đẹp của nhà cấp 4 mái Thái

Nhìn từ tổng thể của nhà cấp 4 mái Thái, chúng ta có thể dễ dàng nhận thấy được sự sang trọng và uy nghiêm của nó.

Ở góc nhìn tổng thể này có thể toát lên được hết những nét đặc trưng và nổi bật nhất của cả căn nhà.

Mái ngói màu xanh sẫm nổi bật giữa một cánh đồng cỏ xanh bát ngát, điểm xuyến lên đó là vài khóm hoa nhỏ xinh của bồn hoa nơi chân tường. Tạo nên một tổng thể hoàn mỹ từ kiến trúc đến tự nhiên cũng như sự hài hòa giữa con người với thiên nhiên.

Trên đây, là những chia sẻ của Xây dựng Bắc Trung Nam về mẫu nhà cấp 4 mái Thái. Hy vọng qua bài viết này các gia chủ tinh tế đã có cho mình một mẫu nhà lý tưởng trong tương lai.

Nếu bạn yêu thích nhà đẹp, nhà sang trọng, giá cả ưu đãi thì hãy liên hệ với Xây dựng Bắc Trung Nam qua:

Hotline: 09639 51111 (Tư vấn miễn phí).

 

Viết bình luận của bạn:
popup

Số lượng:

Tổng tiền: