NGUY NGA VÀ LẤP LÁP VỚI MẪU NHÀ CẤP 4 MÁI NHẬT TẠI HÒA BÌNH

 17/04/2022  0  Bình luận

Nhà cấp 4 mái Thái lộng lẫy nhất Việt Nam

NHÀ CẤP 4 MÁI NHẬT LỘNG LẪY NHẤT CỦA CHỦ ĐẦU TƯ ANH HÒA, TỈNH  HÒA BÌNH

Không chỉ kiến tạo nên những căn biệt thự, dinh thự hàng tỷ đồng mà các dự án của Công ty Xây dựng Bắc Trung Nam còn gây được sự chú ý bởi mẫu nhà cấp 4 hình mái Nhật ấn tượng. Sở hữu mức chi phí vừa phải, hợp lý, phù hợp với rất nhiều hộ gia đình Việt hiện nay. Nhà cấp 4 mái Nhật là thành quả của sự kết hợp khoa học giữa kiến trúc và cảnh quan thiên nhiên. Một ngôi nhà xinh đẹp với lối kiến trúc độc đáo, sáng tạo. Nép mình sau những hàng cây xanh mướt. Nổi bật với lối kiến trúc nhẹ nhàng tinh tế, sự tỉ mỉ và cầu kì trong từng chu tiết thiết kế ngoại thất. Không gian nội thất thì được bố trí hài hòa khoa học. Có thể nói đây chính là một ngôi nhà mơ ước của biết bao người dân Việt Nam ta. Để biết thêm thông tin về mẫu nhà cấp 4 mái Nhật đẹp này mời quý vị và các bạn cùng Xây dựng Bắc Trung Nam theo dõi bài viết dưới đây để cùng nhau khám phá nét đẹp kiêu sa đó.

Nội Dung Chính

Phong cách sang trọng của nhà cấp 4 mái Nhật

Thông tin chung về nhà cấp 4 mái Nhật sang trọng

Phối cảnh mặt tiền quyến rũ của nhà cấp 4 mái Nhật đẹp

Chân cột,

Hệ thống cột hình vuông

Sảnh chính

Không gian sân vườn của nhà cấp 4 mái Nhật

Sân trước

Mặt bằng công năng của mẫu nhà cấp 4 mái Nhật đẹp

Phòng khách

3 phòng ngủ

Kết Luận 

Phong cách sang trọng của nhà cấp 4 mái Nhật

Nhà cấp 4 mái Nhật của anh Hòa ở Hòa Bình là sự kết hợp đầy tính sáng tạo giữa phong cách hiện đại với âm hưởng tân cổ điển.

Mẫu nhà cấp 4 mái Nhật cuốn hút mọi ánh nhìn

Mái ngói kiểu Nhật không những đẹp mà còn vô độc đáo mới mẻ.

Là sự kết hợp hài hòa giữa phong cách kiến trúc mái Thái hiện đại và mái ngói châu Âu cổ điển. Sự khéo léo kết hợp cả hai phong cách đã tạo nên một điểm nhấn ấn tượng cho ngôi nhà. Giữ được sự cao ráo, nguy nga nhưng không gây cảm giác chông chênh vì quá cao.

Đây là mẫu nhà lý tưởng cho mọi nhà.

Thông tin chung về nhà cấp 4 mái Nhật sang trọng

Địa điểm xây dựng: Hòa Bình.

Chủ đầu tư: Anh Hoà.

Phương ăn công năng mặt bằng: phòng khách, phòng thờ, phòng ăn, 3 phòng ngủ, 2 phòng vệ sinh.

Thời gian xây dựng: 02/2022.

Đơn vị thiết kế và thi công: Xây dựng Bắc Trung Nam.

Phối cảnh mặt tiền quyến rũ của nhà cấp 4 mái Nhật đẹp

Mẫu nhà cấp 4 mái Nhật gây ấn tượng mạnh bởi không gian ngoại thất sang trọng, cuốn hút. Với các hình khối thanh thoát kết hợp với mái nhật bắt mắt. Có thể thấy sự đối xứng được khắc họa rõ nét qua phần mặt tiền.

Hệ mái Nhật màu xanh lam có kết cấu chắc chắn. Với độ dốc vừa phải, vô cùng cân đối hài hòa với vẻ đẹp tổng thể của công trình. Hệ thống mái Nhật còn có khả năng chống ẩm, chống thấm và giúp tản nhiệt rất tốt. Phù hợp với mọi điều kiện thời tiết nắng lắm mưa nhiều như nước ta.

Mặt tiền nguy nga, lộng lẫy của mẫu nhà cấp 4 mái Nhật

Chân cột, chân tường được thiết kế các loại hoa văn cao cấp để trang trí. Khiến cho ngôi nhà cấp 4 mái Nhật đẹp trở nên vững chãi và khỏe khoắn hơn.

Tổng thể không gian ngoại thất ngôi nhà cấp 4 mái Nhật lung linh, toát lên vẻ đẹp hiện đại và thanh lịch với tông màu chủ đạo là trắng.

Sắc trắng tinh tế không chỉ tạo sự bắt mắt mà còn làm nổi bật các chi tiết trang trí. Phần mái được lợp ngói màu xanh lam kết hợp với màu trắng lại càng tôn lên vẻ đẹp và cuốn hút người nhìn hơn rất nhiều.

Nổi bật lên trên nền trắng đó là những hình khối tối màu. Các hình khối được thiết kế tỉ mỉ, đối xứng nhau. Tạo nên một tổng thể đặc sắc, đơn giản nhưng không đơn điệu.

Hệ thống cột hình vuông cùng khối kiến trúc đối xứng chính là đại diện tiêu biểu cho phong cách thiết kế hiện đại, tiên tiến.

Ngôi nhà cấp 4 mái Nhật mang phong cách hiện đại nhưng vẫn lưu giữ được dấu ấn của truyền thống cha ông. Nổi bật đó chính là hệ ca chính được làm bằng gỗ tự nhiên.

Từ xa xưa, người Việt Nam quan niệm rằng. Nếu lắp cửa nhà bằng gỗ thì sẽ mang đến sự tài lộc và an vui cho gia chủ. Là một người con của quê hương Hoà Bình, Việt Nam gia đình anh Hoà đã lựa chọn, cửa gỗ làm chủ đạo cho căn nhà của mình. Cửa gỗ kết hợp với những hoạ tiết được điêu khắc tỉ mỉ làm nổi bật lên sự trang trọng và đầm ấm của căn nhà cấp 4 mái Nhật đẹp.

Để nâng cao sự sang trọng và thanh mát cho căn nhà cấp 4 mái Nhật đẹp. Xây dựng Bắc Trung Nam đã lựa chọn của kính để lắp cho toàn bộ hệ thống cửa sổ.

Cửa sổ kính cường lực viền nhôm không chỉ giúp cho căn nhà cấp 4 mái Nhật đẹp trở nên rộng rãi, thoáng mát mà còn tăng thêm vẻ kiên cường, rắn chắc. Đồng thời, cửa sổ bằng kính cũng là một giải pháp trang trí nội thất hữu nhất.

Dưới sự góp mặt của chất liệu kính sẽ giúp không gian nội thất bên trong nhà trở nên sáng sủa, thoáng đãng, tươi mát hơn bao giờ hết.

Không chỉ thế, nhà cấp 4 mái Nhật còn quyến rũ mọi ánh nhìn bởi kiến trúc sảnh chính độc đáo. Sảnh chính được thiết kế và thi công tỉ mỉ. Sảnh chính được ốp bằng gạch tối màu, nổi bật giữa phông nền trắng tinh khôi.

Mặt bên của mẫu nhà cấp 4 mái Nhật đẹp, trẻ trung, đậm chất hiện đại

Sảnh chính thiết kế khá rộng rãi có hệ thống trụ cột vuông vắn, chắc khỏe giúp chống đỡ phần mãi vô cùng cân xứng tạo ra sự vững chãi, bề thế. Bên cạnh đó, hệ thống cột vững chãi còn mang ý nghĩa phong thuỷ sâu sắc. Nó đại diện cho sự vững vàng, và kiến định của gia chủ trong sự nghiệp cũng như hạnh phúc gia đình.

Các bậc tam cấp hình vòng cung, với thiết kế chắc chắc góp phần nâng đỡ từng bước chân của gia chủ và khách nhân khi vào nhà. Giúp cho căn nhà cấp 4 mái Nhật trở nên cao ráo hơn, trang trọng hơn. Mang đậm dấu ấn phong cách ân cổ điển.

Đồng hành với sảnh chính, giúp nâng cao nét đẹp thẩm mỹ cũng như ý nghĩa phong thuỷ của căn nhà cấp 4 mái Nhật đó chính là sảnh phụ.

Để ngôi nhà cấp 4 mái Nhật trở nên gần gũi, thân thiện với thiên nhiên hơn. Các kiến trúc sư tại Xây dựng Bắc Trung Nam đã thiết kế phần chân tường thành những công viên thực thụ. Chân tường trở nên lộng lẫy với sắc xanh của cây cỏ. Và những đón hoa tím, vàng,...

Tạo nên một sự hài hoà giữa nội thất với ngoại thất.

Không gian sân vườn của nhà cấp 4 mái Nhật

Sân trước của ngôi nhà cấp 4 mái Nhật đẹp được quy hoạch khá khang trang. Thay vì sử dụng dụng gạch màu đỏ thường thấy, kiến trúc sư đã sử dụng gạch đá sấm màu trầm ấm. Gạch lát sân không chỉ giúp dễ dàng thoát nước, đồng thời còn chống trơn trượt và giúp dễ dàng vệ sinh cho căn nhà.

Lung linh với góc nhìn tổng thể của nhà cấp 4 mái Nhật tại Hòa Bình

Phối hợp với hệ thống tường rào bao quanh kiên cố để mang lại sự an toàn, yên tâm cho gia đình chủ đầu tư. Chính sự kết hợp độc đáo, tinh tế này đã giúp toàn bộ công trình trở lên vô cùng ấn tượng, tăng tính thẩm mỹ cho không gian sống.

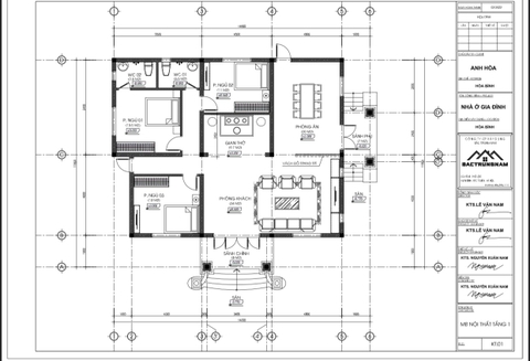
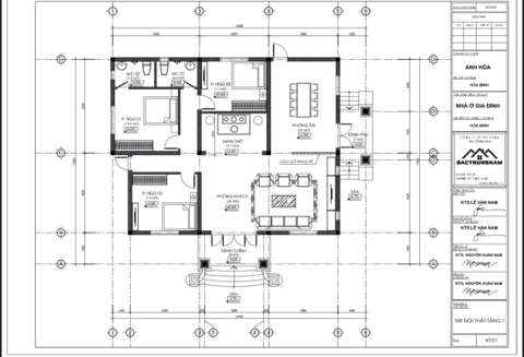
Mặt bằng công năng của mẫu nhà cấp 4 mái Nhật đẹp 

Mặt bằng bố trí công năng nhà cấp 4 mái Nhật ấn tượng gồm có các phòng sau:

Phòng khách trang trọng được bố trí mới lạ ngay sát khu vực cửa chính.

Tiếp theo phòng khách đó chính là phòng thờ được thiết kế trang nghiêm, ấm áp.

Khu vực phòng bếp + ăn tinh tế được thiết kế ngay bên cạnh không gian phòng thờ.

Phương án mặt bằng khoa học, hiện đại, tiết kiệm chi phí của nhà cấp 4 mái Nhật

3 phòng ngủ được bố trí một cách khoa học. Phòng ngủ yên tĩnh, thông thoáng với nhiều hệ cửa sổ rộng lớn, dày đặc nhằm mang lại sự thoải mái nhất cho các thành viên khi nghỉ ngơi, thư giãn.

Cuối cùng là 2 phòng vệ sinh chung tiện nghi đầy đủ trang thiết bị vệ sinh cao cấp.

Xây dựng Bắc Trung Nam vừa gửi đến quý độc giả những thông tin về mẫu nhà cấp 4 mái Nhật đẹp, ấn tượng, độc đáo. Hy vọng đây sẽ là mẫu nhà lý tưởng cho dự định về ngôi nhà tương lai của gia đình các bạn. Nếu bạn yêu thích mẫu nhà cấp 4 mái Nhật đẹp này thì hãy liên hệ ngay với công ty Xây dựng Bắc Trung Nam để được tư vấn cụ thể.

Hotline: 0963 95 1111 (Tư vấn miễn phí).

 

Viết bình luận của bạn:
popup

Số lượng:

Tổng tiền: