TUYỆT PHẨM NHÀ 2 TẦNG MÁI THÁI SANG TRỌNG TẠI HƯNG YÊN

 14/03/2022  0  Bình luận

TUYỆT PHẨM NHÀ 2 TẦNG MÁI THÁI SANG TRỌNG TẠI HƯNG YÊN

Mẫu thiết kế nhà 2 tầng mái Thái đẹp đã không còn xa lạ với bất cứ ai trong mỗi chúng ta. Mẫu thiết kế nhà 2 tầng mái Thái đẹp được nhiều gia chủ tin yêu và lựa chọn, bởi ngoại thất ngoài sang trọng, tinh tế và không hề lạc hậu theo thời gian. Bên cạnh đó mẫu thiết kế này cũng mang lại không gian sống thoải mái, thoáng mát hơn so với các mẫu nhà khác. Mẫu thiết kế nhà 2 tầng mái Thái đẹp này, đã làm say lòng biết bao nhiêu gia chủ và anh Huy ở Hưng Yên cũng không ngoại lệ. Xây dựng Bắc Trung Nam tự hào là đơn vị thiết kế và thi công trọn gói cho mái ấm tương lai của anh Huy với mẫu thiết kế nhà 2 tầng mái Thái đẹp.

NỘI DUNG

Thông tin chung

Không gian ngoại thất nhà 2 tầng mái Thái đẹp của anh Huy tại Hưng Yên

Không gian sân vườn với sắc xanh rực rỡ

Phương án mặt bằng nhà 2 tầng mái Thái đẹp của anh Huy

Thông tin chung

  • Tên sản phẩm: Nhà 2 tầng mái Thái.
  • Chủ đầu tư: Anh Huy
  • Địa chỉ xây dựng: Yên Mỹ - Hưng Yên
  • Diện tích: Tầng 1 với 113 mét vuông bao gồm sảnh. Tầng 2 với  104 mét vuông không bao gồm ban công.
  • Công năng sử dụng: 1 phòng khách, 1 phòng bếp + ăn, 1 phòng thờ, 5 phòng ngủ, 2 phòng tắm, 2 nhà vệ sinh, 1 phòng sinh hoạt chung.
  • Đơn vị thực hiện: Công ty Xây dựng Bắc Trung Nam.
  • Thời điểm thiết kế: 2022

Không gian ngoại thất nhà 2 tầng mái Thái đẹp của anh Huy tại Hưng Yên

Nhà 2 tầng mái Thái sang trọng của anh Huy tại Hưng Yên

Ngay từ cái nhìn đầu tiên, mẫu thiết kế nhà 2 tầng mái Thái đẹp của anh Huy vô cùng cuốn hút mọi ánh nhìn. Đây không phải là một ngôi nhà mái Thái thường gặp, mà đó là một ngôi nhà mái Thái hiện đại, sang trọng nhưng vẫn vấn vương dư âm cổ điển. Mẫu nhà 2 tầng mái Thái đẹp của anh Huy là đỉnh cao của sự hòa quyện giữa hiện đại với phong cách tân cổ điển.

Ở ngôi nhà 2 tầng mái Thái đẹp của anh Huy, có sự kết hợp hài hòa giữa thiên nhiên, con người với phong thuỷ. Tất cả từng chi tiết trang trí đều đã được nghiên cứu theo phong thủy, phù hợp với độ tuổi, vận mệnh và sự nghiệp của gia chủ - anh Huy.

Nhà 2 tầng mái Thái 5 phòng ngủ của anh Huy được thiết kế vừa hiện đại nhưng vẫn mang âm hưởng của phong cách tân cổ điển.

Điển hình đó là hệ thống trụ với những đường nét chạm trổ hoa văn tinh xảo. Các đường gờ trang trí chạy dọc theo mặt tiền làm điểm nhấn cho cả hệ thống ngoại thất của nhà 2 tầng mái Thái này.

Hệ thống cột sang trọng của nhà 2 tầng mái Thái đẹp

Toàn bộ khu ngoại thất với tone màu chủ đạo là màu trắng, màu của sự tinh khôi và thanh khiết. Điểm xuyến lên đó là một là tone màu đỏ tươi của gỗ lim và một ít sắc đen huyền bí của hệ thống lan can.

Lan can được được thiết kế bằng sắt, với những đường nét uốn lượn làm cho cả căn nhà trở nên duyên dáng hơn, dịu dàng hơn.

Nổi bật lên giữa tone màu trắng, chính là màu đỏ của hệ thống cửa chính được làm bằng gỗ tự nhiên, chủ yếu là gỗ lim. Với những hoa văn hình rẽ quạt giúp cho ngôi nhà tràn ngập năng lượng tự nhiên. Gỗ không chỉ mang giá trị thẩm mỹ mà còn là thành quả của nghiên cứu phong thủy.

 

Nhà 2 tầng mái Thái đẹp nhất 2022

Trong phong thủy học, gỗ là đại diện cho sự bình an, mang đến nguồn năng lượng tích cực đồng thời xua đuổi đi những vận xấu. Tăng thêm sinh khí cho ngôi nhà với mục đích bảo vệ gia chủ bình an và thăng tiến trong sự nghiệp.

Kết hợp với tone màu trắng ấy để nâng lên sinh khí của ngôi nhà, đó chính là hệ thống mái ngói phong cách Thái với màu xanh đẹp mắt, tạo nên một tổng thể hoàn mỹ.

Sự kết hợp ấy, mang lại cảm giác thoải mái, sang trọng. Đó là tinh hoa của việc kết hợp phong cách hiện đại với tân cổ điển trong thiết kế và xây dựng.

Về phong thủy, hệ thống mái được xem là nơi tụ khí, có sức ảnh hưởng đến các nguồn năng lượng trong ngôi nhà. Nhà 2 tầng mái Thái đẹp có thiết kế mái nhà hình nhọn - hỏa hình. Kết hợp với không gian trong nhà, cửa chính hệ mộc. Mộc sinh hỏa, đây là điềm lành mang đến sự an vui và tài lộc cho gia chủ.

Cửa sổ, được các kiến trúc sư tài hoa ở Xây dựng Bắc Trung Nam khéo léo sử dụng hệ thống cửa kính viền nhôm xuyên suốt từ tầng một đến tầng 2.

Ngất ngây với góc nghiêng nhà 2 tầng mái Thái đẹp

Cửa kính giúp không giúp ngôi nhà đón được nhiều ánh dương, nhiều năng lượng từ tự nhiên. Giúp cho ngôi nhà có được nguồn năng lượng mới, tích cực hơn. Hạn chế trường hợp ấm ướt, ngột ngạt gây ra các bệnh về hô hấp, do vi khuẩn gây ra.

Ban công rộng rãi, giúp căn nhà đón nhiều ánh nắng, nhiều ánh sáng. Đây chính là yếu tố phong thủy giúp gia chủ thu hút tài lộc.

Ban công được trang trí bằng các tiểu cây xanh, với những năng lượng tích cực. Cây xanh là biểu tượng của sự đâm chồi nảy lộc, sinh sôi nảy nở cho ngôi nhà.

Màu sắc của ban công được nghiên cứu cho phù hợp với độ tuổi của gia chủ - anh Huy. Từ đó sẽ mang đến vận khí tốt, tài vận hanh thông cho anh Huy. Đồng thời bảo vệ những thành viên trong gia đình gia chủ bình an, vạn sự như ý.

Không gian sân vườn với sắc xanh rực rỡ

Khuôn viên vườn nhà anh Huy ở Hưng Yên không quá rộng, nhưng được các kiến trúc sư tài ba và chuyên nghiệp ở xây dựng Bắc Trung Nam bố trí vô cùng tỉ mỉ và thơ mộng.

Góc nghiêng nhà 2 tầng mái Thái đẹp

Phần chân tường được Xây dựng Bắc Trung Nam bố trí thành những khu vườn hoa tuyệt sắc. Tiểu cảnh cây xanh và những tiểu hoa tươi được sắp xếp một cách khoa học tạo một không gian sống giản dị nhưng không mất đi vẻ cao quý vốn có.

Đường đi quanh nhà được lát bằng các loại gạch chống trơn, nâng cao tính thẩm mỹ cho ngôi nhà. Với loại gạch này ra chủ có thể dễ dàng vệ sinh, đảm bảo cho sân vườn luôn sạch sẽ và khô thoáng.

Nội thất trang trí nhà đẹp

Có thể nói,các kiến trúc sư tài ba tài xây dụng bắc trung nam đã có sự nghiên cứu kỹ càng và tỉ mĩ trước khi thiết kế nhà 2 tầng mái Thái đẹp của anh Huy tại hưng Yên.

Phương án mặt bằng nhà 2 tầng mái Thái đẹp của anh Huy

Sau khi dạo quanh ngoại thất nhà 2 tầng mái Thái của anh Huy, có lẽ mỗi chúng ta đều phải trong trầm trồ trước sự sang trọng và lộng lẫy của nó. Tiếp theo đời mời các bạn cùng đến với mặt bằng công năng nhà anh Huy.

Nhà 2 tầng mái Thái đẹp với quy mô 2 tầng đáp ứng đầy đủ công năng sử dụng cho gia đình 5 - 6 người.

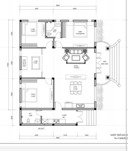
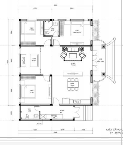
Tầng 1 với 113m² bao gồm sảnh đà làm nên một không gian rộng rãi, thoáng mát.

Thiết kế mặt bằng tầng 1 nhà 2 tầng mái Thái của anh Huy

 phòng khách được thiết kế sang trọng, tinh tế và là nơi để gia chủ đón tiếp quý nhân.

Đối diện với phòng khách là phòng bếp. Phòng bếp và phòng ăn được tích hợp lại với nhau để cho gia đình có nhiều không gian gần gũi nhau hơn.

Phòng bếp còn là nơi gia đình sum họp, sum vầy bên nhau sau những ngày dài. Là nơi để chia sẻ cho nhau nghe những câu chuyện, nên với diện tích 20m2 vừa đủ cho gia đình đông người có thể quây quần bên nhau.

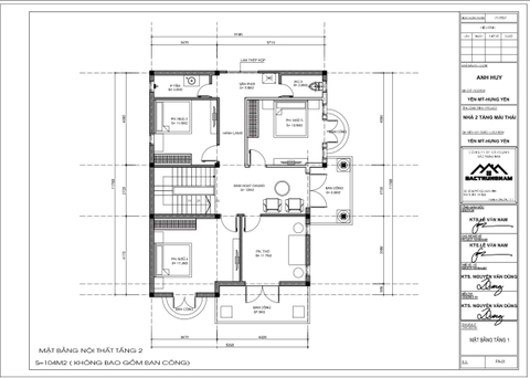
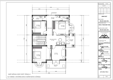
Phòng thờ được bố trí ở tầng 2, với cách bố trí phòng thờ ở tầng 2 đã tạo nên không gian riêng tư, mang lại cảm giác trang nghiêm, thanh tịnh.

Với thiết kế nội thất sang trọng nhưng ấm cúng nó cũng thể hiện lòng thành kính của anh Huy với gia tiên.

Phương án thiết kế mặt bằng tầng 2 nhà anh Huy ở Hưng Yên

5 phòng ngủ được bố trí một cách khoa học, rải đều từ tầng 1 đến tầng 2 giúp cho ngôi nhà trở nên khoa học, lí tưởng.

Có hai phòng ngủ ở dưới lầu 1, đây là phòng ngủ dành cho các ông bà lớn tuổi. Tránh trường hợp, ông bà lớn tuổi phải leo cầu thang lên xuống. Với thiết kế này rất thuận tiện cho ông bà trong các hoạt động sinh hoạt.

Đặc biệt, lầu 2 có một không gian chung. Đây là nơi các thành viên trong gia đình có thể ngồi lại nói chuyện với nhau, cùng nhau tâm sự, chia sẻ buồn vui.

Việc bố trí phòng tắm và phòng vệ sinh riêng biệt nó cũng nói lên tính hiện đại của ngôi nhà.

Khu vực về nhà vệ sinh và nhà tắm được rất dụng tâm trong trang trí. Nơi đây là nơi có vai trò như một góc nhỏ riêng tư để ra chủ có thể thư giãn, tái tạo năng lượng.

Ngôi nhà 2 tầng mái Thái đẹp của anh Huy đại hoàn thành và thành công rực rỡ dưới sự tận tâm và tận tình của Xây dựng Bắc Trung Nam.

Không chỉ tạo dựng một lối sống tiện nghi và không gian sinh hoạt hiện đại, gần gũi với thiên nhiên. Mà ngôi nhà 2 tầng mái Thái này còn là một món quà tinh thần quý giá, là nơi các thành viên trong gia đình có thể tạo ra những phút giây ấm áp bên nhau.

Nếu các bạn yêu thích nhà đẹp, nhà sang trọng thì hãy liên hệ với xây dựng Bắc Trung Nam cầm qua hotline: 0963.95.1111

Công ty xây dựng Bắc Trung Nam là một công ty chuyên thiết kế và xây dựng nhà hàng đầu cả nước.

Với đội ngũ kiến trúc sư trên 10 năm kinh nghiệm, chuyên thiết kế nhà đẹp, thi công công trình đảm bảo chất lượng, an toàn và bàn giao luôn luôn đúng hạn, cam kết không chi phí phát sinh.

Hotline:  0963.95.1111 (Tư vấn miễn phí).

 

Viết bình luận của bạn:
popup

Số lượng:

Tổng tiền: