SIÊU PHẨM BIỆT THỰ MÁI NHẬT ĐẸP PHONG CÁCH TÂN CỔ ĐIỂN CỦA ANH HẬU TẠI BẮC GIANG 

 12/03/2022  0  Bình luận

Biệt thự mái Nhật đẹp phong cách tân cổ điển luôn là sự lựa chọn của nhiều gia chủ hiện nay.  Biệt thự mái Nhật đẹp phong cách tân cổ điển mang trong mình nét đẹp quyền quý, cao sang của phong cách Châu Á truyền thống, nhưng vẫn hấp thụ được những tinh hoa, hiện đại của Châu Âu. Vậy nên, biệt thự mái Nhật đẹp phong cách tân cổ điển luôn luôn là sự lựa chọn hàng đầu của nhiều gia chủ Việt. Và anh Hậu - Bắc Giang cũng không ngoại lệ. Xây dựng Bắc Trung Nam rất hân hạnh được đồng hành cùng anh Hậu trong công trình xây dựng mái ấm tương lai của anh.

Nội dung

- Thông tin chung

- Thiết kế công năng sử dụng biệt thự mái Nhật đẹp phong cách tân cổ điển của anh Hậu.

- Thiết kế mặt tiền của biệt thự mái Nhật đẹp phong cách tân cổ điển của anh Hậu tại Bắc Giang.

- Góc nghiêng của biệt thự mái Nhật đẹp phong cách tân cổ điển của anh Hậu (Bắc Giang).

- Góc nhìn tổng thể toàn căn biệt thự mái Nhật phong cách tân cổ điển.

- Xây dựng BẮC TRUNG NAM - Đơn vị thiết kế và xây dựng siêu phẩm biệt thự mái Nhật của anh Hậu -Bắc Giang

Thông tin chung

  • Tên sản phẩm: Biệt thự mái Nhật.

  • Phong cách thiết kế: Tân cổ điển.

  • Chủ đầu tư: anh Hậu.

  • Địa chỉ xây dựng: Bắc Giang.

  • Diện tích: 136 mét vuông.

  • Con năng sử dụng: 1 phòng khách, 1 phòng thờ, 1 phòng bếp, 1 phòng ăn, 3 phòng ngủ, 2 phòng vệ sinh.

  • Thời điểm thiết kế: 02/ 2022.

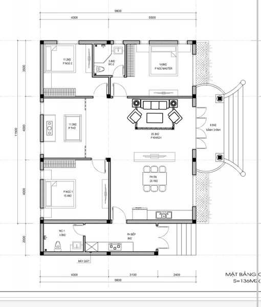
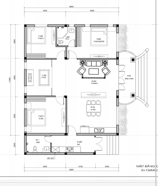
Thiết kế công năng sử dụng biệt thự mái Nhật đẹp phong cách tân cổ điển của anh Hậu.

Với thiết kế một tầng, giúp cho các thành viên trong gia đình anh Hậu có nhiều không gian sum họp bên nhau hơn. Đặc biệt với thiết kế biệt thự mái Nhật đẹp này cũng chính là giúp cho các thế hệ trong gia đình gần nhau hơn, hiểu nhau hơn.

Phương án thiết kế mặt bằng biệt thự mái Nhật phong đẹp

Từ những bước chân đầu tiên, bước vào biệt thự mái Nhật đẹp của anh Hậu tại Bắc Giang tất cả chúng ta đều bởi choáng ngợp bởi không gian phòng khách.

Với diện tích 25,3m², cùng thiết kế khoa học kết hợp với lối trang trí hiện đại phần nào thể hiện đẳng cấp và địa vị của anh Hậu. Phòng khách, là nơi giúp anh Hậu thể hiểu sự tôn trọng, hiếu khách của mình đối với những vị khách đến chơi nhà nên với mẫu thiết kế hoàn toàn phù hợp mọi nhu cầu của gia chủ.

Phòng thờ được thiết kế ngay bên cạnh phòng khách, đó vẫn là một căn phòng riêng. Mang đến sự tôn trọng, ấm cúng và tôn kính của anh Hậu đối với ông bà tổ tiên.

Mẫu nội thất trang trí phòng thờ biệt thự mái Nhật đẹp

Phòng thờ là nơi để anh Hậu làm trọn chữ hiếu của mình với ơn đức của ông cha.

Tiếp ngay bên cạnh phòng thờ chính là phòng bếp, với diện tích 8m² phòng bếp là trái tim của gia đình, là nơi người mẹ, người phụ nữ thể hiện tình yêu thương và chăm sóc của mình đối với gia đình.

Ở giữa phòng khách và phòng bếp chính là phòng ăn là nơi kết nối các thành viên trong gia đình lại với nhau. Nơi chia sẻ những niềm vui nỗi buồn.

Thấu hiểu được điều đó, nên Xây dựng Bắc Trung Nam đã dựa trên mong muốn và nhu cầu của anh Hậu, để thiết kế một không gian phòng ăn rộng rãi thoáng mát. Với 20m2, có đầy đủ không gian cho các thành viên trong gia đình thể hiện tình cảm với nhau.

Hơn thế, cửa sổ phòng ăn được thiết kế bằng kính giúp cho cả căn phòng đón được nhiều ảnh mặt trời hơn. Làm ấm áp thêm không khí gia đình gia chủ.

Ba phòng ngủ và hai phòng vệ sinh được bố trí một cách khoa học hợp lý. Giúp các thành viên trong gia đình có nhiều không gian riêng tư hơn. nó thể hiểu sự khoa học và hiện đại của căn nhà.

Mẫu trang trí phòng ngủ biệt thự mái Nhật đẹp

Với phong cách thiết kế mặt bằng như thế này, không chỉ gắn kết các thành viên trong gia đình anh Hậu lại với nhau, mà còn thể hiểu sự sang trọng và quý phái trong từng chi tiết. 

Đồng thời, nói lên tính chuyên nghiệp và đẳng cấp trong lĩnh vực thiết kế và thi công của Xây dựng Bắc Trung Nam.

Thiết kế mặt tiền của biệt thự mái Nhật đẹp phong cách tân cổ điển của anh Hậu tại Bắc Giang.

Bất cứ ai trong mỗi chúng ta đều sẽ bị hấp dẫn bởi vẻ nguy nga và lộng lẫy của biệt thự mái Nhật đẹp của anh Hậu.

Mặt tiền biệt thự mái Nhật tân cổ điển nhà anh Hậu-Bắc Giang

Từ những bước chân đầu tiên bước vào sảnh chính, mỗi chúng ta đều sẽ bị hấp dẫn bởi hệ thống bậc thang hình vòng cung. Cùng với hai bên tay vịn được trang trí bằng các trụ sứ với những đường nét điêu khắc tinh tế, càng tăng thêm vẻ kiên cường nhưng duyên dáng của ngôi nhà.

Thêm một điểm hấp dẫn nữa, mà xây dựng Bắc Trung Nam muốn mang đến đó chính là việc bố trí hệ thống trụ hình tròn.

Các trụ tròn này chính là một dấu ấn đặc sắc của phong cách tân cổ điển Châu Âu. Với những hoa văn trang trí nổi giúp tăng thêm vẻ lộng lẩy và kiêu sa cho căn biệt thự.

Hai đầu cột được điêu khắc bằng những họa tiết, hoa văn cầu kỳ tinh xảo.

Kết hợp với hệ thống đèn chùm trên trần sảnh chính càng tăng thêm vẻ kiều diễm, quyền quý cho cả căn nhà.

Vật liệu chủ yếu của cửa chính vẫn là gỗ phong thủy, gỗ tự nhiên - gỗ lim.

Với những họa tiết điêu khắc hoa văn rồng phượng cổ điển, nhưng đồng thời cố trang trí thêm vào đó những tấm kính cường lực giúp cho căn nhà trở nên sáng sủa hơn, ấm áp hơn. Đồng thời cũng tạo thêm hòa khí cho ngôi nhà, phò trợ cho sự phát triển của gia chủ.

Cửa s được làm bằng kính cường lực viền nhôm, giúp cho ngôi nhà đón được nhiều ánh sáng hơn. Mang đến ánh dương, sự hưng thịnh, thịnh vượng cho gia chủ - anh Hậu (Bắc Giang).

Ngoại thất biệt thự mái Nhật đẹp

Đặc biệt, khung cửa sổ được chạm khắc những họa tiết tinh tế, góp phần làm nâng cao sự sang trọng, quyền quý của ngôi nhà.

Ban công được thiết kế theo hình vòng cung, mang nét đẹp kiêu sa của phong cách Châu Âu.

Tone màu chủ yếu của biệt thự mái Nhật đẹp vẫn là tone màu trắng mang đến sự thanh khiết, pha lẫn một ít màu đỏ tươi của cửa gỗ tự nhiên và màu xanh ghi của mái ngói.

Ở góc nhìn chính diện, chúng ta không thể bỏ qua hệ thống mái. Mái nhà được thiết kế theo phong cách Nhật Bản là điểm nhấn của biệt thự mái Nhật này. Hệ thống mái nhô cao giúp cho ngôi nhà trở nên thông thoáng hơn, cao quý hơn.

Chân tường được ốp lát bằng gạch sứ màu xám, làm nổi bật lên giữa tone màu trắng, tạo nên sự độc đáo, riêng biệt cho căn biệt thự.

Góc nghiêng của biệt thự mái Nhật đẹp phong cách tân cổ điển của anh Hậu (Bắc Giang).

Nếu ở mặt tiền, hệ thống cột tròn được thiết kế theo phong cách Châu Âu là chủ yếu. Thì đến với góc nghiêng, là điển hình của phong cách hiện đại được thi công thành các trụ hình vuông. Lối trang trí đơn giản nhưng thanh lịch càng làm nổi bật những trụ vuông vức, tinh tế.

Siêu phẩm góc nghiêng biệt thự mái Nhật đẹp

Đó là dấu ấn của phong cách hiện đại trong căn biệt thự mái Nhật đẹp này.

Góc nhìn tổng thể toàn căn biệt thự mái Nhật phong cách tân cổ điển.

Nhìn từ trên cao xuống căn biệt thự mái Nhật đẹp phong cách tân cổ điển của anh Hậu như một cô gái đang thẹn thùng, với những nét đẹp duyên dáng, đang nghiêng mình nép sau hàng cây xanh bát ngát.

Biệt thự mái Nhật đẹp nhìn từ trên cao

Nét tinh tế được thể hiện trong phong cách xây và lợp mái của biệt thự mái Nhật đẹp. Xây dựng Bắc Trung Nam đã lựa chọn mái ngói để lợp cho biệt thự mái Nhật đẹp phong cách tân cổ điển của anh Hậu.

Mái ngói giúp cho căn biệt thự ấm áp hơn vào mùa đông và mát mẻ hơn vào mùa hè. Đồng thời, với thiết kế độ dốc vừa phải làm giúp dễ dàng thoát nước, nâng cao tính an toàn, nâng cao chất lượng, cũng như tuổi thọ của căn biệt thự.

Với mẫu thiết kế ngoại thất này, biệt thự mái Nhật đẹp tân cổ điển của anh Hậu vẫn mang được nét duyên dáng thanh lịch của châu Á, nhưng vẫn kế thừa được những tinh hoa thiết kế và trang trí của Châu Âu. Sang trọng trong từng đường nét, tinh tế trong từng hoa văn, đó là tích hợp của nền văn minh trí thức mang tầm vóc châu lục.

Nếu quý vị và các bạn yêu thích phong cách thiết kế biệt thự mái Nhật đẹp phong cách tân cổ điển này giống như anh Hậu. Thì hãy nhanh tay liên hệ với hotline: 0963.95.1111 của Xây dựng Bắc Trung Nam để được hỗ trợ nhanh nhất, kịp thời nhất, và  nhanh tay giữ lấy những ưu đãi đặc biệt của công ty xây dựng Bắc Trung Nam.

Xây dựng BẮC TRUNG NAM - Đơn vị thiết kế và xây dựng siêu phẩm biệt thự mái Nhật đẹp của anh Hậu - Bắc Giang

Bắc Trung Nam Từ hào là công ty chuyên thiết kế và thi công nhà trọn gói uy tín trên khắp cả nước. Trải dài từ miền Bắc đến điểm cuối cùng của cực Nam Tổ Quốc.

Chỉ cần bạn liên hệ hotline: 0963.95.1111, nhà đẹp, nhà an toàn và nhà chất lượng cứ để Xây dựng Bắc Trung Nam lo.

Mẫu trang trí nội thất biệt thự mái Nhật đẹp

Xây dựng Bắc Trung Nam luôn cam kết đảm bảo chất lượng. Uy tín làm nên thương hiệu của Xây dựng Bắc Trung Nam nổi tiếng như bây giờ. Những chủ đầu tư đã từng hợp tác đều luôn dành những lời khen ngợi “có cánh” cho Xây dựng Bắc Trung Nam.

 Xây dựng Bắc Trung Nam luôn đặt niềm tin khách hàng và chất lượng của công trình lên hàng đầu và giá cả ưu đãi nhất, phù hợp với ví tiền của hầu hết gia chủ Việt.

Hotline: 0963.95.1111 

popup

Số lượng:

Tổng tiền: